SitaTrendy
Avaloir à évacuation gravitaire
- Produits
SitaTrendy
Avaloir à évacuation gravitaire
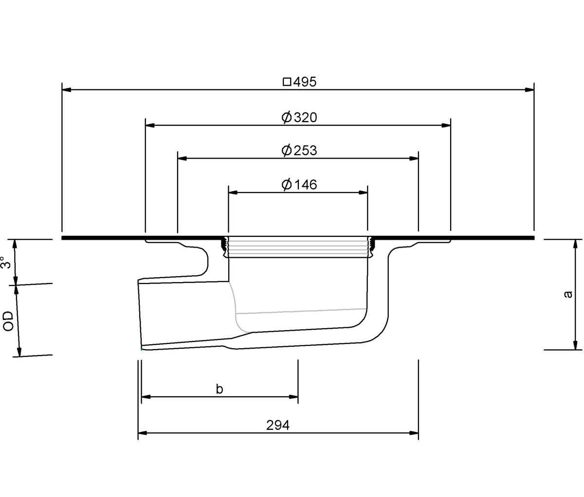
| Diamètre nominal DN | Diamètre extérieur DE (mm) | Ouverture (mm x mm) | a (mm) | b (mm) |
|---|---|---|---|---|
| 125 | 125 | 250 mm x 420 mm | 161 | 241 |
| 70 | 75 | 250 mm x 350 mm | 117 | 165 |
| 100 | 110 | 250 mm x 350 mm | 153 | 162 |
Texte explicatif
Débit
Débit selon NBN EN 1253-2 in l/s
Débit selon NBN EN 1253-2, avec élément de retenue pour l'évacuation de secours in l/s
Hier finden Sie eine Übersicht über alle verfügbaren Abflussmengen.
Sélection d’articles
SitaTrendy sortie coudée, sans arrêt de gravier, en polyuréthane, calorifuge, selon NBN EN 1253-2, diamètre nominal DN 70, DN 100 ou DN 125. Permet le raccordement direct de tuyaux par manchon d'assemblage, pour l’évacuation gravitaire, avec grand manchon de raccordement adapté (495 x 495 mm) et bague de fixation pour un meilleur maintien du manchon de raccordement. Fourniture et pose selon les règles de l'art.
|
Niveau d’eau (mm) | ||||||||||||||||||||
|---|---|---|---|---|---|---|---|---|---|---|---|---|---|---|---|---|---|---|---|---|
| Diamètre nominal DN | 5 | 10 | 15 | 20 | 25 | 30 | 35 | 40 | 45 | 50 | 55 | 60 | 65 | 70 | 75 | 80 | 85 | 90 | 95 | 100 |
| DN 100 | 0.5 | 1.2 | 1.8 | 2.7 | 3.6 | 4.6 | 5.6 | 6.7 | 7.8 | 9 | 10.2 | 11.9 | 13.5 | 13.5 | 13.5 | 13.5 | 13.5 | 13.5 | 13.5 | 13.5 |
| DN 125 | 0.6 | 1.5 | 2.4 | 3.1 | 3.8 | 4.8 | 5.7 | 6.8 | 7.9 | 9.5 | 11 | 12.4 | 13.8 | 13.8 | 13.8 | 13.8 | 13.8 | 13.8 | 13.8 | 13.8 |
| DN 70 | 0.5 | 1.1 | 1.6 | 2.6 | 3.5 | 4.5 | 5.4 | 6.5 | 7.5 | 8.5 | 9.5 | 10.8 | 12.1 | 12.1 | 12.1 | 12.1 | 12.1 | 12.1 | 12.1 | 12.1 |
|
Niveau d’eau (mm) | ||||||||||||||||||||
|---|---|---|---|---|---|---|---|---|---|---|---|---|---|---|---|---|---|---|---|---|
| Diamètre nominal DN | 5 | 10 | 15 | 20 | 25 | 30 | 35 | 40 | 45 | 50 | 55 | 60 | 65 | 70 | 75 | 80 | 85 | 90 | 95 | 100 |
| DN 100 | 1.2 | 2.3 | 3.3 | 4.7 | 6 | 7.5 | 9 | 10.5 | 11.9 | 14.5 | 17 | 19.9 | 22.8 | 22.8 | 22.8 | 22.8 | 22.8 | 22.8 | 22.8 | 22.8 |
| DN 70 | 1.2 | 2.2 | 3.1 | 4.6 | 6 | 7.5 | 8.9 | 10.5 | 12 | 12.6 | 13.1 | 13.6 | 14 | 14 | 14 | 14 | 14 | 14 | 14 | 14 |
+












