SitaCompact
Verhogingselement
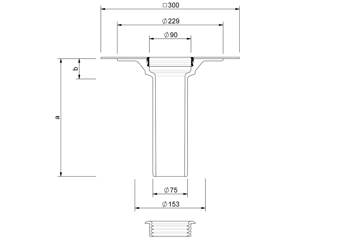
| a (mm) | b (mm) | Min. overbrugging van thermische isolatie (mm) | Max. overbrugging van thermische isolatie (mm) |
|---|---|---|---|
| 255 | 44 | 50 | 220 |
Prestatiebeschrijving
Installatievoorbeelden
MultiCAD und BIM-Daten
Artikelselectie
SitaCompact verhogingselement, van polyurethaan, Conform NBN EN 1253-2, thermisch geïsoleerd, voor isolatiedikten van 50 tot 220 mm. Met ingeschuimde aansluitkraag naar keuze (300 x 300 mm) passend bij de dakafdichting en met borgring voor extra borging van de aansluitkraag en montage van de bladvanger. Inclusief meerlippige afdichtring als terugstuwbeveiliging, leveren en deskundig inbouwen.
SitaCompact voor ongeventileerde dakconstructies met SitaCompact balkonopzetframe en bekledingsplaten
1 SitaCompact isolatie-element
2 SitaCompact verticaal
SitaCompact verhogingselement bestaande uit:
3.1 Afdichtring
3.2 Afvoerelement
SitaCompact balkonopzetframe bestaande uit:
4.1 Eindrooster
4.2 Behuizing
4.3 Roosterinlaatzeef
2 SitaCompact verticaal
SitaCompact verhogingselement bestaande uit:
3.1 Afdichtring
3.2 Afvoerelement
SitaCompact balkonopzetframe bestaande uit:
4.1 Eindrooster
4.2 Behuizing
4.3 Roosterinlaatzeef
Ongeventileerde dakopbouw met bekledingsplaten op dragers conform algemeen erkende vaktechnische regels, met:
- Bekledingsplaten op dragers
- Beschermmat
- Afdichting
- Thermische isolatie
- Dampscherm
- Onderconstructie
SitaCompact met overloopring voor ongeventileerde dakconstructies met bekledingsplaten
1 SitaCompact isolatie-element
2 SitaCompact verticaal
SitaCompact verhogingselement bestaande uit:
3.1 Afdichtring
3.2 Afvoerelement
SitaCompact stuwring bestaande uit:
4.1 Stuwring
4.2 Afdichtring
SitaDrain® Terra bestaande uit:
5.1 Inspectierooster
5.2 In hoogte verstelbare rubberen voetjes
5.3 Frame
6 SitaPipe roestvrijstalen buisbeugel
7 SitaPipe roestvrijstalen buis
8 SitaPipe roestvrijstalen bocht
9 SitaPipe roestvrijstalen verankeringsbeugel
2 SitaCompact verticaal
SitaCompact verhogingselement bestaande uit:
3.1 Afdichtring
3.2 Afvoerelement
SitaCompact stuwring bestaande uit:
4.1 Stuwring
4.2 Afdichtring
SitaDrain® Terra bestaande uit:
5.1 Inspectierooster
5.2 In hoogte verstelbare rubberen voetjes
5.3 Frame
6 SitaPipe roestvrijstalen buisbeugel
7 SitaPipe roestvrijstalen buis
8 SitaPipe roestvrijstalen bocht
9 SitaPipe roestvrijstalen verankeringsbeugel
Ongeventileerde dakopbouw met bekledingsplaten op dragers conform algemeen erkende vaktechnische regels, met:
- Bekledingsplaten op dragers
- Beschermmat
- Afdichting
- Thermische isolatie
- Dampscherm
- Onderconstructie
In order for the external content to be
displayed at this location, you must accept
the cookies of the category
"Preferences".
You can adjust the cookie settings here.
You can adjust the cookie settings here.












