SitaMini
Odpływ balkonowy i tarasowy
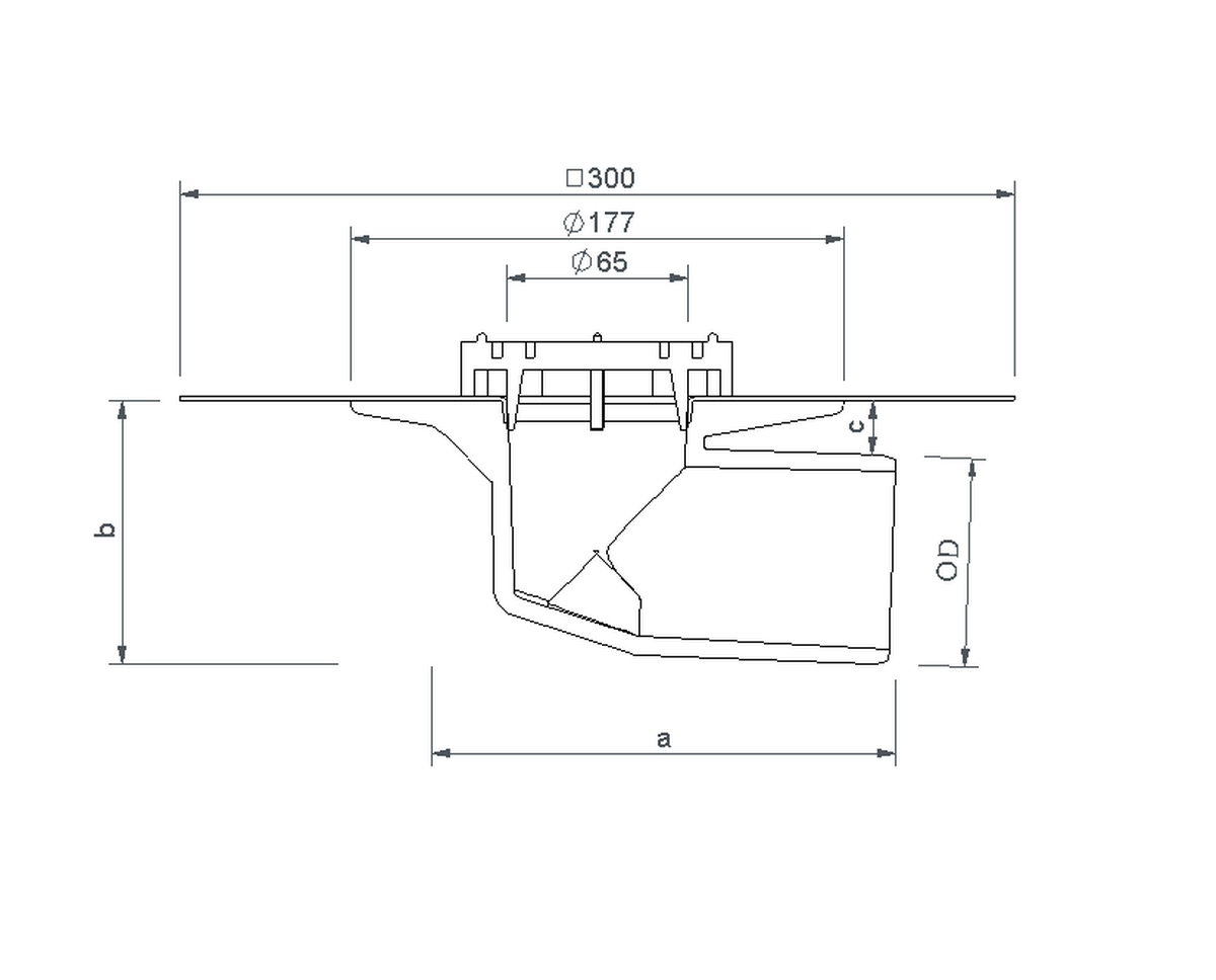
| Średnica nominalna DN | Średnica zewnętrzna OD (mm) | Otwór roboczy (mm x mm) | a (mm) | b (mm) | c |
|---|---|---|---|---|---|
| 50 | 50 | 161 mm x 161 mm | 161 | 75 | 3° |
| 70 | 75 | 167 mm x 167 mm | 167 | 95 | 2° |
Tekst wykonania
Przykłady instalacji
Wybór artykułu
SitaMini wpust balkonowy, skośny. Z poliuretanu, izolowany termicznie, o średnicy DN 50 lub DN 70. Z wbudowanym fabrycznie kołnierzem przyłączeniowym (300 mm × 300 mm) do uszczelnienia dachowego, dostarczany w stanie kompletnym wraz z okrągłym sitem. Element dostarczany gotowy do montażu.
SitaMini oraz SitaDrain Terra w dachach wentylowanych z okładziną płytową na podkładkach
SitaDrain® Terra składa się z następujących elementów:
1.1 Rama
1.2 Metalowe stopki w otulinie gumowej z regulacją wysokości
1.3 Kratka rewizyjna
2 SitaMini pionowy
1.1 Rama
1.2 Metalowe stopki w otulinie gumowej z regulacją wysokości
1.3 Kratka rewizyjna
2 SitaMini pionowy
Wentylowana konstrukcja dachowa z płytą na wsporniku zgodnie z aaRdT z:
- płytami na podstawkach
- budowlaną matą ochronną
- uszczelnieniem
- pochyłym jastrychem
- konstrukcją dolną
+












