SitaStandard DN 70
Freispiegelgully
Eigenschaften
Artikelnummer
OK101510
Anschluss
PVC weich-Manschette
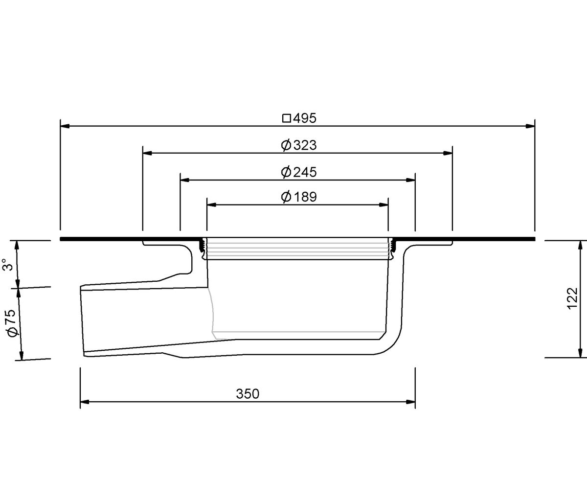
Außendurchmesser OD (mm)
75 mm
Aussparungsmaß (mm x mm)
250 x 350 mm
Topfhöhe
122 mm
Topfinnendurchmesser
189 mm
Temperaturbeständigkeit min.
-40 °C
Temperaturbeständigkeit max.
80 °C
Baustoffklasse
Euroklasse E / B2 normal entflammbar
Nennspannung
230 Volt
Nennleistung
10 Watt
Schutzart
IP 57
Schutzklasse
II
Ideal für nahezu jede Einbausituation ist der Klassiker von Sita: der SitaStandard. Dank dem aus wärmedämmendem Polyurethan-Integral-Hartschaum gefertigten Dachgullykörper ist er druckbelastbar und resistent gegen übliche Umwelteinflüsse. Der SitaStandard zeichnet sich durch einen großen Einlauftopf und der damit verbundenen hohen Abflussmenge aus.
+













