SitaTrendy DN 90
Freispiegelgully
Eigenschaften
Normen
DIN EN 1253-2
Artikelnummer
OK150199
Anschluss
Schraubflansch
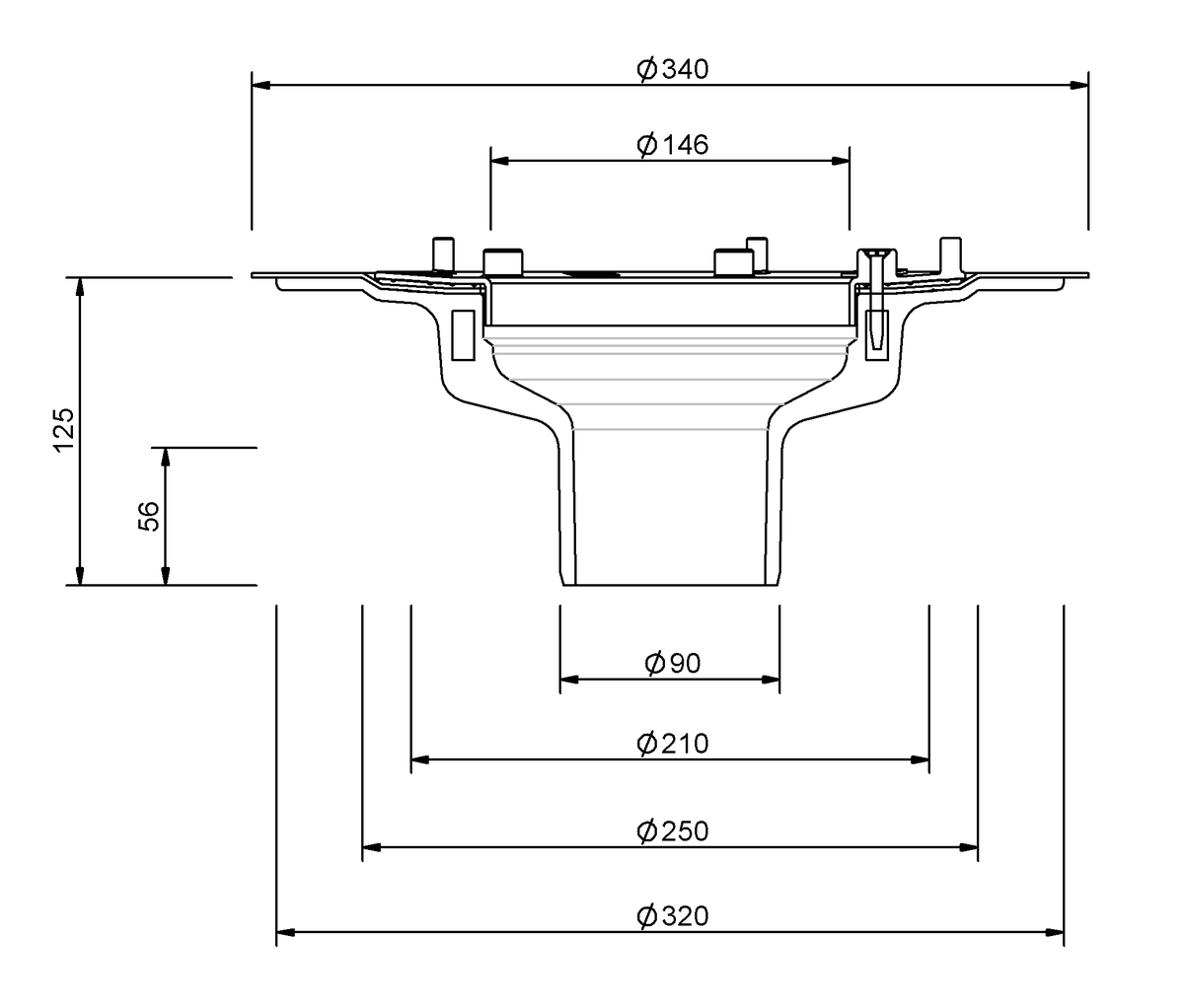
Außendurchmesser OD (mm)
90 mm
Durchbruch / Kernbohrung (mm)
250 mm
Topfinnendurchmesser
146 mm
Temperaturbeständigkeit min.
-40 °C
Temperaturbeständigkeit max.
80 °C
Baustoffklasse
Euroklasse E / B2 normal entflammbar
Der SitaTrendy zeichnet sich durch seine kompakte Bauweise und hohe Abflussmenge aus. Der flexible Dachgully ist mit Wunschanschlussmanschetten, Schraubflansch oder mit Klebeflansch erhältlich und miteinander kompatibel.
+













