SitaTrendy DN 125
Freispiegelgully
Eigenschaften
Artikelnummer
150616
Anschluss
Polyfin 4020 v-Manschette
Normen
DIN EN 1253-2
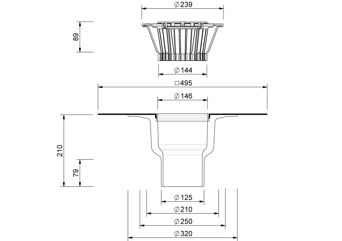
Außendurchmesser OD (mm)
125 mm
Durchbruch / Kernbohrung (mm)
250 mm
Topfinnendurchmesser
146 mm
Temperaturbeständigkeit min.
-40 °C
Temperaturbeständigkeit max.
80 °C
Baustoffklasse
Euroklasse E / B2 normal entflammbar
Der SitaTrendy zeichnet sich durch seine kompakte Bauweise und hohe Abflussmenge aus. Der flexible Dachgully ist mit Wunschanschlussmanschetten, Schraubflansch oder mit Klebeflansch erhältlich und miteinander kompatibel.
+













