SitaStandard
Freispiegelgully
- Produkte
SitaStandard
Freispiegelgully
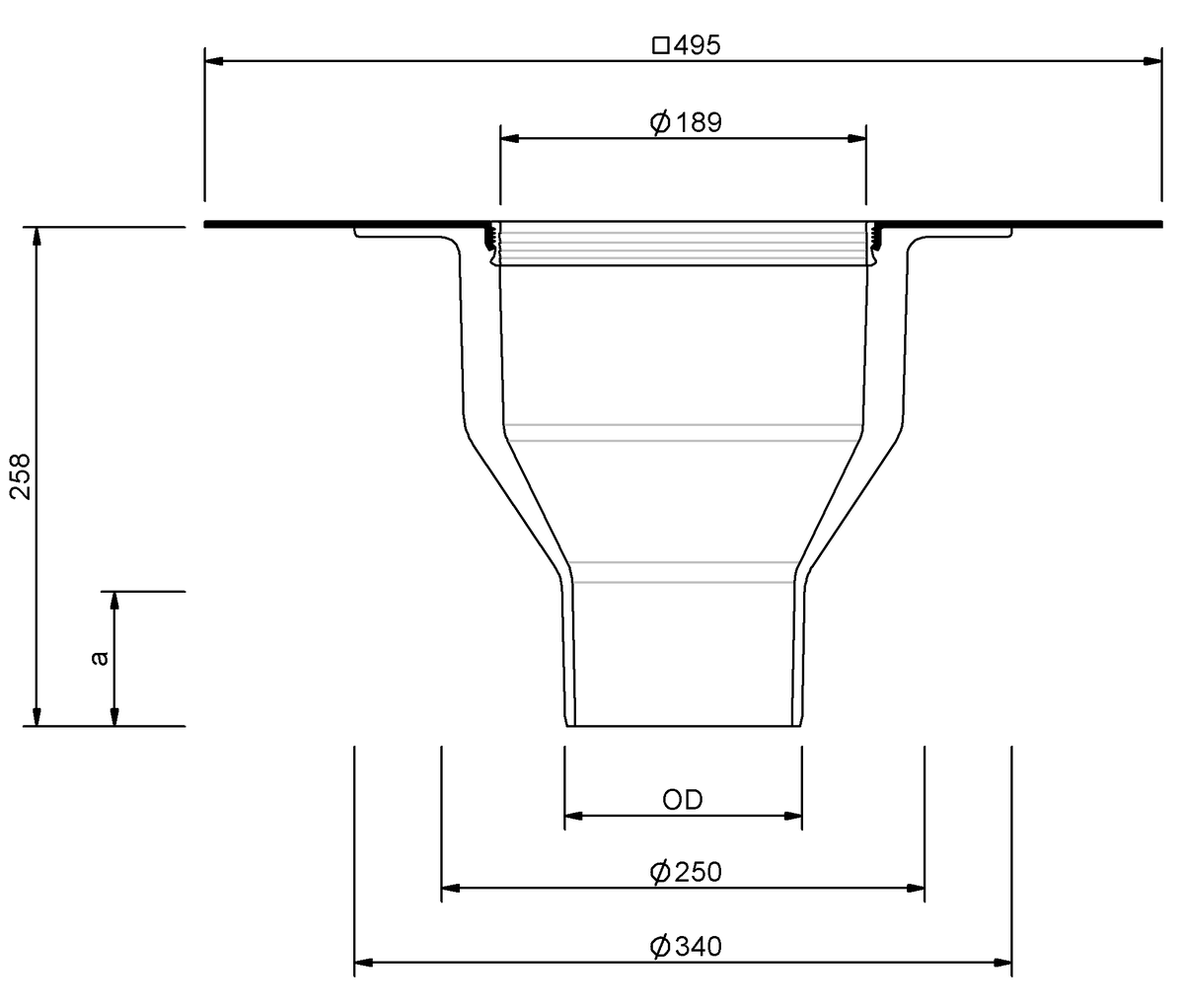
| Nennweite DN | Außendurchmesser OD (mm) | Durchbruch / Kernbohrung (mm) | a (mm) |
|---|---|---|---|
| 70 | 75 | 250 | 65 |
| 200 | 200 | 250 | 101 |
| 100 | 110 | 250 | 67 |
| 150 | 160 | 250 | 77 |
| 125 | 125 | 250 | 70 |
SitaStandard senkrecht ohne Kiesfang, aus Polyurethan, wärmegedämmt, nach DIN EN 1253-2, in den Nennweiten DN 70, DN 100, DN 125, DN 150 und DN 200. Zum direkten Anschluss an Rohre mit Steckmuffe, zur Freispiegelentwässerung, mit großer eingeschäumter Wunschanschlussmanschette (495 mm x 495 mm) passend zur Dachabdichtung und mit Fixierring zur zusätzlichen Sicherung der Anschlussmanschette, mit eingeschäumtem Heizelement nach EN 60335-1/2 bei DN 70 bis DN 150, DN 200 mit Rohrmanschettenheizung, und 2,0 m langem Kabel zum direkten Anschluss an 230 V bei einer Heizleistung von ca. 10 W, liefern und fachgerecht einbauen.
|
Stauhöhe (mm) | ||||||||||||||||||||
|---|---|---|---|---|---|---|---|---|---|---|---|---|---|---|---|---|---|---|---|---|
| Nennweite DN | 5 | 10 | 15 | 20 | 25 | 30 | 35 | 40 | 45 | 50 | 55 | 60 | 65 | 70 | 75 | 80 | 85 | 90 | 95 | 100 |
| 70 | 0.7 | 1.7 | 2.7 | 3.8 | 4.8 | 6 | 7.1 | 8.3 | 9.4 | 10.8 | 12.2 | 13.5 | 14.8 | 14.8 | 14.8 | 14.8 | 14.8 | 14.8 | 14.8 | 14.8 |
| 100 | 0.7 | 1.8 | 2.8 | 3.8 | 4.8 | 6.1 | 7.4 | 8.5 | 9.6 | 11 | 12.3 | 13.6 | 14.8 | 14.8 | 14.8 | 14.8 | 14.8 | 14.8 | 14.8 | 14.8 |
| 125 | 0.7 | 1.8 | 2.9 | 4.1 | 5.2 | 6.4 | 7.6 | 8.7 | 9.7 | 11 | 12.3 | 14.1 | 15.8 | 15.8 | 15.8 | 15.8 | 15.8 | 15.8 | 15.8 | 15.8 |
| 150 | 0.6 | 1.6 | 2.6 | 3.6 | 4.6 | 5.9 | 7.2 | 8.2 | 9.2 | 11 | 12.8 | 14 | 15.1 | 15.1 | 15.1 | 15.1 | 15.1 | 15.1 | 15.1 | 15.1 |
| 200 | 0.5 | 1.5 | 2.5 | 3.5 | 4.5 | 5.8 | 7.1 | 8.1 | 9.2 | 10.6 | 12 | 13.3 | 14.5 | 14.5 | 14.5 | 14.5 | 14.5 | 14.5 | 14.5 | 14.5 |
|
Stauhöhe (mm) | ||||||||||||||||||||
|---|---|---|---|---|---|---|---|---|---|---|---|---|---|---|---|---|---|---|---|---|
| Nennweite DN | 5 | 10 | 15 | 20 | 25 | 30 | 35 | 40 | 45 | 50 | 55 | 60 | 65 | 70 | 75 | 80 | 85 | 90 | 95 | 100 |
| 70 | 1.2 | 2.2 | 3.1 | 4.6 | 6 | 7.6 | 9.2 | 11.1 | 13 | 13.9 | 14.8 | 14.9 | 14.9 | 14.9 | 14.9 | 14.9 | 14.9 | 14.9 | 14.9 | 14.9 |
| 100 | 1.6 | 2.8 | 4 | 5.5 | 7 | 8.8 | 10.5 | 12.3 | 14.1 | 16.7 | 19.3 | 22.8 | 26.2 | 26.2 | 26.2 | 26.2 | 26.2 | 26.2 | 26.2 | 26.2 |
| 125 | 1.2 | 2.3 | 3.4 | 4.9 | 6.3 | 7.9 | 9.5 | 11.6 | 13.6 | 16.1 | 18.6 | 21.9 | 25.2 | 25.2 | 25.2 | 25.2 | 25.2 | 25.2 | 25.2 | 25.2 |
| 150 | 1.4 | 2.4 | 3.4 | 4.9 | 6.3 | 8 | 9.6 | 11.6 | 13.6 | 16.2 | 18.7 | 22.3 | 25.8 | 25.8 | 25.8 | 25.8 | 25.8 | 25.8 | 25.8 | 25.8 |
SitaStandard mit Anstauelement und Fallleitung im nicht belüfteten Dachaufbau
1.1 höhenverstellbare Gummimetallpuffer
1.2 Geschlossener Deckel
1.3 Dichtring
1.4 Grundkörper
SitaStandard Aufstockelement bestehend aus:
2.1 Grundkörper
2.2 Dichtring
3 SitaStandard Dämmkörper Aufstockelement
4 SitaStandard Dämmkörper Gully
5 SitaStandard senkrecht
6 SitaMore Verstärkungsblech
- Abdichtung
- Wärmedämmung
- Dampfsperre
- Unterkonstruktion
SitaStandard Hauptentwässerung im nicht belüfteten Dachaufbau mit Begrünung
2 SitaStandard senkrecht
SitaStandard Aufstockelement bestehend aus:
3.1 Dichtring
3.2 Grundkörper
SitaGreen Gründachschacht bestehend aus:
4.1 Revisionsrost
4.2 Grundkörper
4.3 höheneinstellbaren Gummifüßen
5 SitaStandard Dämmkörper Aufstockelement
- Dachbegrünung nach Systemanbieter
- Drainagematte
- Bautenschutzmatte
- Abdichtung
- Wärmedämmung
- Dampfsperre
- Unterkonstruktion
SitaStandard senkrecht mit SitaGreen Gründachschacht für die Hauptentwässerung im Umkehrdach
2 SitaStandard senkrecht
3 SitaStandard Aufstockelement ohne Dichtring
SitaGreen Gründachschacht bestehend aus:
4.1 Revisionsrost
4.2 Grundkörper
4.3 höheneinstellbaren Gummifüßen
- Dachbegrünung nach Systemanbieter
- Filtervlies
- Drainagematte
- Bautenschutzmatte
- XPS Wärmedämmung
- Abdichtung
- Unterkonstruktion
Technische Zeichnungen
PDF TechnischeZeichnung_OK100300_de.pdfPDF TechnischeZeichnung_OK100310_de.pdf
PDF TechnischeZeichnung_OK100500_de.pdf
PDF TechnischeZeichnung_OK100510_de.pdf
PDF TechnischeZeichnung_OK100700_de.pdf
PDF TechnischeZeichnung_OK100710_de.pdf
PDF TechnischeZeichnung_OK100900_de.pdf
PDF TechnischeZeichnung_OK100910_de.pdf
PDF TechnischeZeichnung_OK101100_de.pdf
PDF TechnischeZeichnung_OK101110_de.pdf
DWG TZ_DB_SitaStandard_senkrecht_ohne_Kiesfang_DN100.DWG
DWG TZ_DB_SitaStandard_senkrecht_ohne_Kiesfang_DN125.DWG
DWG TZ_DB_SitaStandard_senkrecht_ohne_Kiesfang_DN150.DWG
DWG TZ_DB_SitaStandard_senkrecht_ohne_Kiesfang_DN200.DWG
DWG TZ_DB_SitaStandard_senkrecht_ohne_Kiesfang_DN70.DWG
Gewünschte Anschlussmanschette nicht gefunden? Wir helfen gerne weiter +49 2522 - 83 40-140!













