SitaTrendy
Freispiegelgully
- Produkte
SitaTrendy
Freispiegelgully
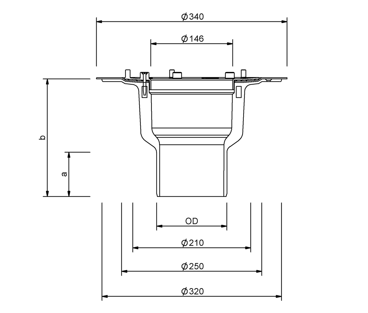
| Nennweite DN | Außendurchmesser OD (mm) | Durchbruch / Kernbohrung (mm) | a (mm) | b (mm) |
|---|---|---|---|---|
| 90 | 90 | 250 | 56 | 125 |
| 125 | 125 | 250 | 79 | 210 |
| 100 | 110 | 250 | 75 | 210 |
| 70 | 75 | 250 | 63 | 210 |
Leistungstext
Abflussmenge
Abflussmenge nach DIN EN 1253-2 in l/s
Abflussmenge nach DIN EN 1253-2 mit Anstauelement für die Notentwässerung in l/s
Hier finden Sie eine Übersicht über alle verfügbaren Abflussmengen.
Einbaubeispiele
Downloads
PDF TechnischeZeichnung_OK150299_de.pdf
PDF TechnischeZeichnung_OK150499_de.pdf
PDF TechnischeZeichnung_OK150699_de.pdf
DWG TZ_DB_SitaTrendy_Schraubflansch_senkrecht_ohne_Kiesfang_DN100.DWG
DWG TZ_DB_SitaTrendy_Schraubflansch_senkrecht_ohne_Kiesfang_DN125.DWG
DWG TZ_DB_SitaTrendy_Schraubflansch_senkrecht_ohne_Kiesfang_DN70.DWG
DWG TZ_DB_SitaTrendy_Schraubflansch_senkrecht_ohne_Kiesfang_DN90.DWG
Artikelauswahl
SitaTrendy Schraubflansch senkrecht ohne Kiesfang, aus Polyurethan, wärmegedämmt, nach DIN EN 1253-2, in den Nennweiten DN 70, DN 90, DN 100 und DN 125. Zum direkten Anschluss an Rohre mit Steckmuffe, zur Freispiegelentwässerung, mit vorgefertigten Bohrungen zur Befestigung des Bauteils in der Unterkonstruktion. Mit eingeschäumtem Einsatzring zur Aufnahme der beiliegenden Schrauben, Losflansch aus Aluminium und zwei Dichtmanschetten zum Einklemmen von Bitumen-, Kunststoff- oder Kautschuckbahnen, liefern und fachgerecht einbauen.
|
Stauhöhe (mm) | ||||||||||||||||||||
|---|---|---|---|---|---|---|---|---|---|---|---|---|---|---|---|---|---|---|---|---|
| Nennweite DN | 5 | 10 | 15 | 20 | 25 | 30 | 35 | 40 | 45 | 50 | 55 | 60 | 65 | 70 | 75 | 80 | 85 | 90 | 95 | 100 |
| 70 | 0.6 | 1.4 | 2.2 | 3.1 | 3.9 | 4.7 | 5.5 | 6.6 | 7.6 | 8.6 | 9.5 | 10.4 | 11.3 | 11.3 | 11.3 | 11.3 | 11.3 | 11.3 | 11.3 | 11.3 |
| 90 | 0.4 | 1.3 | 2.1 | 3.3 | 4.5 | 5.5 | 6.5 | 7.3 | 8 | 8.6 | 9.2 | 9.2 | 9.2 | 9.2 | 9.2 | 9.2 | 9.2 | 9.2 | 9.2 | 9.2 |
| 100 | 0.6 | 1.5 | 2.3 | 3.3 | 4.3 | 5.2 | 6.1 | 7.3 | 8.5 | 9.4 | 10.3 | 11 | 11.7 | 11.7 | 11.7 | 11.7 | 11.7 | 11.7 | 11.7 | 11.7 |
| 125 | 0.7 | 1.6 | 2.4 | 3.3 | 4.2 | 5.1 | 5.9 | 7.3 | 8.7 | 10.1 | 11.4 | 12.7 | 14 | 14 | 14 | 14 | 14 | 14 | 14 | 14 |
|
Stauhöhe (mm) | ||||||||||||||||||||
|---|---|---|---|---|---|---|---|---|---|---|---|---|---|---|---|---|---|---|---|---|
| Nennweite DN | 5 | 10 | 15 | 20 | 25 | 30 | 35 | 40 | 45 | 50 | 55 | 60 | 65 | 70 | 75 | 80 | 85 | 90 | 95 | 100 |
| 70 | 1.2 | 2.1 | 2.9 | 4.4 | 5.8 | 7.3 | 8.8 | 10.5 | 12.1 | 12.4 | 12.6 | 13.1 | 13.5 | 13.5 | 13.5 | 13.5 | 13.5 | 13.5 | 13.5 | 13.5 |
| 90 | 1.2 | 2.3 | 3.3 | 4.9 | 6.4 | 7.9 | 9.4 | 11.2 | 13 | 14.8 | 16.6 | 18.8 | 20.9 | 20.9 | 20.9 | 20.9 | 20.9 | 20.9 | 20.9 | 20.9 |
| 100 | 1.2 | 2.3 | 3.3 | 4.7 | 6.1 | 7.8 | 9.4 | 11.4 | 13.3 | 15.2 | 17 | 19.6 | 22.2 | 22.2 | 22.2 | 22.2 | 22.2 | 22.2 | 22.2 | 22.2 |
| 125 | 1.2 | 2.2 | 3.2 | 4.6 | 6 | 7.5 | 9 | 10.7 | 12.4 | 14.3 | 16.2 | 18.5 | 20.8 | 20.8 | 20.8 | 20.8 | 20.8 | 20.8 | 20.8 | 20.8 |
SitaTrendy Schraubflansch im nicht belüfteten Dachaufbau mit Terrassenplatten im Splittbett
1 SitaTrendy Dämmkörper Aufstockelement
SitaTrendy Aufstockelement bestehend aus:
2.1 Dichtring
2.2 Grundkörper
SitaMore Terrassenbausatz bestehend aus:
3.1 Endrost
3.2 Gehäuse
3.3 Höheneinstellring
SitaTrendy Schraubflansch senkrecht bestehend aus:
4.1 Grundkörper
4.2 Losflansch, Dichtungen und Schrauben
5 SitaTrendy Dämmkörper Gully
SitaTrendy Aufstockelement bestehend aus:
2.1 Dichtring
2.2 Grundkörper
SitaMore Terrassenbausatz bestehend aus:
3.1 Endrost
3.2 Gehäuse
3.3 Höheneinstellring
SitaTrendy Schraubflansch senkrecht bestehend aus:
4.1 Grundkörper
4.2 Losflansch, Dichtungen und Schrauben
5 SitaTrendy Dämmkörper Gully
Nicht belüfteter Dachaufbau mit Plattenbelag auf Splittbett nach den aaRdT mit:
- Plattenbelag
- Kies- oder Splittbett
- Drainagematte
- Bautenschutzmatte
- Abdichtung
- Wärmedämmung
- Dampfsperre
- Unterkonstruktion
Technische Zeichnungen
PDF TechnischeZeichnung_OK150199_de.pdfPDF TechnischeZeichnung_OK150299_de.pdf
PDF TechnischeZeichnung_OK150499_de.pdf
PDF TechnischeZeichnung_OK150699_de.pdf
DWG TZ_DB_SitaTrendy_Schraubflansch_senkrecht_ohne_Kiesfang_DN100.DWG
DWG TZ_DB_SitaTrendy_Schraubflansch_senkrecht_ohne_Kiesfang_DN125.DWG
DWG TZ_DB_SitaTrendy_Schraubflansch_senkrecht_ohne_Kiesfang_DN70.DWG
DWG TZ_DB_SitaTrendy_Schraubflansch_senkrecht_ohne_Kiesfang_DN90.DWG
| SitaTrendy | Artikel Nr. | |||
|---|---|---|---|---|
Schraubflansch senkrecht ohne Kiesfang | ||||
| DN 90 | Schraubflansch | OK150199 | Zum Produkt | |
| DN 70 | Schraubflansch | OK150299 | Zum Produkt | |
| DN 100 | Schraubflansch | OK150499 | Zum Produkt | |
| DN 125 | Schraubflansch | OK150699 | Zum Produkt |
+













