SitaTrendy
Freispiegelgully
- Produkte
SitaTrendy
Freispiegelgully
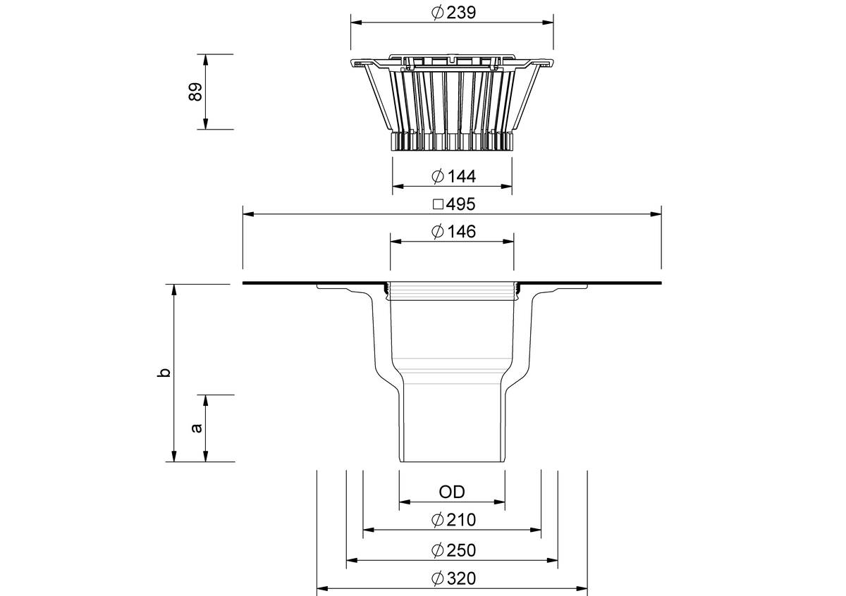
| Nennweite DN | Außendurchmesser OD (mm) | Durchbruch / Kernbohrung (mm) | a (mm) | b (mm) |
|---|---|---|---|---|
| 70 | 75 | 250 | 63 | 210 |
| 100 | 110 | 250 | 75 | 210 |
| 125 | 125 | 250 | 79 | 210 |
| 90 | 90 | 250 | 56 | 125 |
Leistungstext
Abflussmenge
Abflussmenge nach DIN EN 1253-2 in l/s
Abflussmenge nach DIN EN 1253-2 mit Anstauelement für die Notentwässerung in l/s
Hier finden Sie eine Übersicht über alle verfügbaren Abflussmengen.
Einbaubeispiele
MultiCAD und BIM-DatenAUSSCHREIBEN.DE
Downloads
DWG EB_SitaTrendy_mit_SitaDrain_Terra_HE_mit Plattenbelag_im_Splittbett.DWG
DWG EB_SitaTrendy_NE_mit_Anstauelement_als Speier_im_nicht_beluefteten_Dachaufbau.DWG
DWG EB_SitaTrendy_mit_Anstauelment_fuer_die_Notentwaesserung_im_Gruendach.DWG
PDF SitaTrendy_und_SitaDrain_Terra_bei_Plattenbelag_auf_Splittbett_ohne_Waermedaemmung.pdf
PDF SitaTrendy_mit_Anstauelement_fuer_die_Notentwaesserung_als_Speier_im_beluefteten_Dachaufbau.pdf
PDF SitaTrendy_mit_Anstauelement_im_nicht_beluefteten_Dachaufbau_mit_extensiver_Begruenung.pdf
PDF TechnischeZeichnung_150110_de.pdf
PDF TechnischeZeichnung_150200_de.pdf
PDF TechnischeZeichnung_150210_de.pdf
PDF TechnischeZeichnung_150400_de.pdf
PDF TechnischeZeichnung_150410_de.pdf
PDF TechnischeZeichnung_150600_de.pdf
PDF TechnischeZeichnung_150610_de.pdf
DWG TZ_DB_SitaTrendy_senkrecht_DN100.dwg
DWG TZ_DB_SitaTrendy_senkrecht_DN125.dwg
DWG TZ_DB_SitaTrendy_senkrecht_DN70.dwg
DWG TZ_DB_SitaTrendy_senkrecht_DN90.dwg
Artikelauswahl
SitaTrendy senkrecht, aus Polyurethan, wärmegedämmt, nach DIN EN 1253-2, in den Nennweiten DN 70, DN 90, DN 100 und DN 125. Zum direkten Anschluss an Rohre mit Steckmuffe, zur Freispiegelentwässerung, mit großer Wunschanschlussmanschette (495 mm x 495 mm), passend zur Dachabdichtung und mit Fixierring zur zusätzlichen Sicherung der Anschlussmanschette und zur Aufnahme des beiliegenden Kiesfanges, liefern und fachgerecht einbauen.
|
Stauhöhe (mm) | ||||||||||||||||||||
|---|---|---|---|---|---|---|---|---|---|---|---|---|---|---|---|---|---|---|---|---|
| Nennweite DN | 5 | 10 | 15 | 20 | 25 | 30 | 35 | 40 | 45 | 50 | 55 | 60 | 65 | 70 | 75 | 80 | 85 | 90 | 95 | 100 |
| 70 | 0.6 | 1.4 | 2.2 | 3.1 | 3.9 | 4.7 | 5.5 | 6.6 | 7.6 | 8.6 | 9.5 | 10.4 | 11.3 | 11.3 | 11.3 | 11.3 | 11.3 | 11.3 | 11.3 | 11.3 |
| 90 | 0.4 | 1.3 | 2.1 | 3.3 | 4.5 | 5.5 | 6.5 | 7.3 | 8 | 8.6 | 9.2 | 9.2 | 9.2 | 9.2 | 9.2 | 9.2 | 9.2 | 9.2 | 9.2 | 9.2 |
| 100 | 0.6 | 1.5 | 2.3 | 3.3 | 4.3 | 5.2 | 6.1 | 7.3 | 8.5 | 9.4 | 10.3 | 11 | 11.7 | 11.7 | 11.7 | 11.7 | 11.7 | 11.7 | 11.7 | 11.7 |
| 125 | 0.7 | 1.6 | 2.4 | 3.3 | 4.2 | 5.1 | 5.9 | 7.3 | 8.7 | 10.1 | 11.4 | 12.7 | 14 | 14 | 14 | 14 | 14 | 14 | 14 | 14 |
|
Stauhöhe (mm) | ||||||||||||||||||||
|---|---|---|---|---|---|---|---|---|---|---|---|---|---|---|---|---|---|---|---|---|
| Nennweite DN | 5 | 10 | 15 | 20 | 25 | 30 | 35 | 40 | 45 | 50 | 55 | 60 | 65 | 70 | 75 | 80 | 85 | 90 | 95 | 100 |
| 70 | 1.2 | 2.1 | 2.9 | 4.4 | 5.8 | 7.3 | 8.8 | 10.5 | 12.1 | 12.4 | 12.6 | 13.1 | 13.5 | 13.5 | 13.5 | 13.5 | 13.5 | 13.5 | 13.5 | 13.5 |
| 90 | 1.2 | 2.3 | 3.3 | 4.9 | 6.4 | 7.9 | 9.4 | 11.2 | 13 | 14.8 | 16.6 | 18.8 | 20.9 | 20.9 | 20.9 | 20.9 | 20.9 | 20.9 | 20.9 | 20.9 |
| 100 | 1.2 | 2.3 | 3.3 | 4.7 | 6.1 | 7.8 | 9.4 | 11.4 | 13.3 | 15.2 | 17 | 19.6 | 22.2 | 22.2 | 22.2 | 22.2 | 22.2 | 22.2 | 22.2 | 22.2 |
| 125 | 1.2 | 2.2 | 3.2 | 4.6 | 6 | 7.5 | 9 | 10.7 | 12.4 | 14.3 | 16.2 | 18.5 | 20.8 | 20.8 | 20.8 | 20.8 | 20.8 | 20.8 | 20.8 | 20.8 |
SitaTrendy Schraubflansch im nicht belüfteten Dachaufbau mit Terrassenplatten im Splittbett
1 SitaTrendy Dämmkörper Aufstockelement
SitaTrendy Aufstockelement bestehend aus:
2.1 Dichtring
2.2 Grundkörper
SitaMore Terrassenbausatz bestehend aus:
3.1 Endrost
3.2 Gehäuse
3.3 Höheneinstellring
SitaTrendy Schraubflansch senkrecht bestehend aus:
4.1 Grundkörper
4.2 Losflansch, Dichtungen und Schrauben
5 SitaTrendy Dämmkörper Gully
SitaTrendy Aufstockelement bestehend aus:
2.1 Dichtring
2.2 Grundkörper
SitaMore Terrassenbausatz bestehend aus:
3.1 Endrost
3.2 Gehäuse
3.3 Höheneinstellring
SitaTrendy Schraubflansch senkrecht bestehend aus:
4.1 Grundkörper
4.2 Losflansch, Dichtungen und Schrauben
5 SitaTrendy Dämmkörper Gully
Nicht belüfteter Dachaufbau mit Plattenbelag auf Splittbett nach den aaRdT mit:
- Plattenbelag
- Kies- oder Splittbett
- Drainagematte
- Bautenschutzmatte
- Abdichtung
- Wärmedämmung
- Dampfsperre
- Unterkonstruktion
SitaTrendy und SitaDrain® Terra für die Hauptentwässerung bei Plattenbelag auf Splittbett ohne Wärmedämmung
1 SitaPipe Edelstahl Rohr
2 SitaTrendy Dämmkörper Gully
3 SitaTrendy senkrecht
4 SitaDrain Kiesleiste
SitaDrain® Terra bestehend aus:
5.1 Revisionsrost
5.2 Rahmen
5.3 höhenverstellbare Gummimetallpuffer
2 SitaTrendy Dämmkörper Gully
3 SitaTrendy senkrecht
4 SitaDrain Kiesleiste
SitaDrain® Terra bestehend aus:
5.1 Revisionsrost
5.2 Rahmen
5.3 höhenverstellbare Gummimetallpuffer
Belüfteter Dachaufbau mit Plattenbelag auf Splittbett nach den aaRdT mit:
- Plattenbelag
- Kies- oder Splittbett
- Drainagematte
- Bautenschutzmatte
- Abdichtung
- Unterkonstruktion
SitaTrendy mit Anstauelement für die Notentwässerung als Speier im belüfteten Dachaufbau
SitaMore Anstauelement bestehend aus:
1.1 höhenverstellbare Gummimetallpuffer
1.2 Geschlossener Deckel
1.3 Dichtring
1.4 Grundkörper
SitaTrendy Aufstockelement bestehend aus:
2.1 Grundkörper
2.2 Dichtring
3 SitaTrendy Dämmkörper Aufstockelement
4 SitaTrendy senkrecht
5 SitaPipe Edelstahl Sicherungschelle
6 SitaPipe Edelstahl Bogen
7 SitaPipe Edelstahl Rohrschelle
8 SitaPipe Edelstahl Rohr
9 SitaAttika Fassaden-Abdeckplatte
1.1 höhenverstellbare Gummimetallpuffer
1.2 Geschlossener Deckel
1.3 Dichtring
1.4 Grundkörper
SitaTrendy Aufstockelement bestehend aus:
2.1 Grundkörper
2.2 Dichtring
3 SitaTrendy Dämmkörper Aufstockelement
4 SitaTrendy senkrecht
5 SitaPipe Edelstahl Sicherungschelle
6 SitaPipe Edelstahl Bogen
7 SitaPipe Edelstahl Rohrschelle
8 SitaPipe Edelstahl Rohr
9 SitaAttika Fassaden-Abdeckplatte
Nicht belüfteter Dachaufbau nach den aaRdT mit:
- Abdichtung
- Wärmedämmung
- Dampfsperre
- Unterkonstruktion
- Attikadurchbruch mit Fugenband
SitaTrendy mit Anstauelement für die Notentwässerung im nicht belüfteten Dachaufbau mit extensiver Dachbegrünung
1 SitaTrendy Dämmkörper Gully
2 SitaTrendy senkrecht
SitaTrendy Aufstockelement bestehend aus:
3.1 Dichtring
3.2 Grundkörper
SitaMore Anstauelement bestehend aus:
4.1 Grundkörper
4.2 Dichtring
4.3 höhenverstellbare Gummimetallpuffer
4.4 Geschlossener Deckel
2 SitaTrendy senkrecht
SitaTrendy Aufstockelement bestehend aus:
3.1 Dichtring
3.2 Grundkörper
SitaMore Anstauelement bestehend aus:
4.1 Grundkörper
4.2 Dichtring
4.3 höhenverstellbare Gummimetallpuffer
4.4 Geschlossener Deckel
Nicht belüfteter Dachaufbau mit extensiver Begrünung nach den aaRdT mit:
- Extensiver Dachbegrünung mit Vegetationsschicht nach Systemanbieter
- Schutz-, Drain- und Filterschicht nach Systemanbieter
- Abdichtung
- Wärmedämmung
- Dampfsperre
- Unterknstruktion
Damit die externen Inhalte an dieser Stelle
angezeigt werden können, müssen Sie die
Cookies der Kategorie „Präferenzen“
akzeptieren.
Sie können die Cookie-Einstellungen hier anpassen.
Sie können die Cookie-Einstellungen hier anpassen.
Damit die externen Inhalte an
dieser Stelle angezeigt werden
können, müssen Sie die Cookies
der Kategorie „Präferenzen“
akzeptieren.
Sie können die Cookie-Einstellungen hier anpassen.
Sie können die Cookie-Einstellungen hier anpassen.
AutoCAD
DWG EB_SitaTrendy_mit_SitaMore_Terrassenbausatz_im_nicht_beluefteten_Dachaufbau_mit_Platten_im_Splittbett.DWGDWG EB_SitaTrendy_mit_SitaDrain_Terra_HE_mit Plattenbelag_im_Splittbett.DWG
DWG EB_SitaTrendy_NE_mit_Anstauelement_als Speier_im_nicht_beluefteten_Dachaufbau.DWG
DWG EB_SitaTrendy_mit_Anstauelment_fuer_die_Notentwaesserung_im_Gruendach.DWG
Einbaubeispiele
PDF SitaTrendy_Schraubflansch_im_nicht_beluefteten_Dachaufbau_mit_Terrassenplatten_im_Splittbett.pdfPDF SitaTrendy_und_SitaDrain_Terra_bei_Plattenbelag_auf_Splittbett_ohne_Waermedaemmung.pdf
PDF SitaTrendy_mit_Anstauelement_fuer_die_Notentwaesserung_als_Speier_im_beluefteten_Dachaufbau.pdf
PDF SitaTrendy_mit_Anstauelement_im_nicht_beluefteten_Dachaufbau_mit_extensiver_Begruenung.pdf
Technische Zeichnungen
PDF TechnischeZeichnung_150100_de.pdfPDF TechnischeZeichnung_150110_de.pdf
PDF TechnischeZeichnung_150200_de.pdf
PDF TechnischeZeichnung_150210_de.pdf
PDF TechnischeZeichnung_150400_de.pdf
PDF TechnischeZeichnung_150410_de.pdf
PDF TechnischeZeichnung_150600_de.pdf
PDF TechnischeZeichnung_150610_de.pdf
DWG TZ_DB_SitaTrendy_senkrecht_DN100.dwg
DWG TZ_DB_SitaTrendy_senkrecht_DN125.dwg
DWG TZ_DB_SitaTrendy_senkrecht_DN70.dwg
DWG TZ_DB_SitaTrendy_senkrecht_DN90.dwg
Gewünschte Anschlussmanschette nicht gefunden? Wir helfen gerne weiter +49 2522 - 83 40-140!
+













