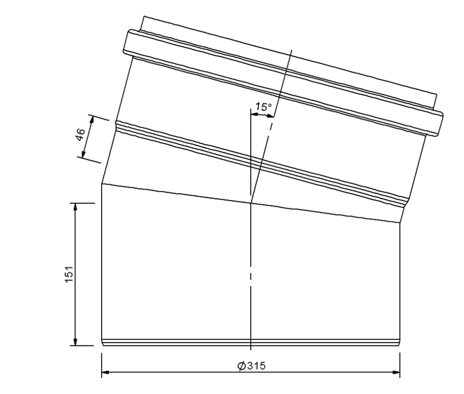
SitaPipe Stainless Steel DN 315
bend
Attributes
Article number
70041531
connection
DN 315
Standards
DIN EN 1124
External diameter OD (mm)
315 mm
Material
Rust-proof stainless steel
Material number
1.4404
Colour
Silver
Finish
Smooth
Due to the low weight, the pipe can be routed quickly and effectively by a single person without any aids. The well-known and popular socket system is valued by craftspeople and planners in equal measure. The timeless appearance guarantees an attractive appearance.












