SitaVent Fireguard® DN 70
Conduit de ventilation de protection incendie
Caractéristiques
Numéro d'article
F304700
raccord
bitume-Manchon
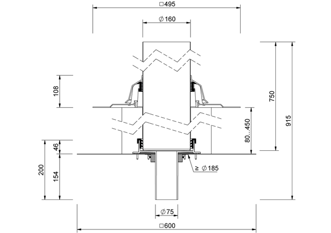
Diamètre extérieur DE (mm)
75 mm
Percée / percement (mm)
185 mm
Ouverture (mm x mm)
150 mm x 150 mm
Longueur d'embout
154 mm
Résistance à haute température min.
-20 °C
Traversement de l’isolant min. (mm)
80 mm
Traversement de l’isolant max. (mm)
450 mm
Double protection contre l’eau et l’incendie. Sur quoi se base la protection stable des avaloirs et conduits d’aération SitaFireguard® ? Sur une idée aussi simple que géniale : un manchon coupe-feu astucieux, fixé à la tôle de renfort pour les toitures en tôle d’acier trapézoïdale. Autre avantage : le montage peut s’effectuer entièrement sur le toit.












