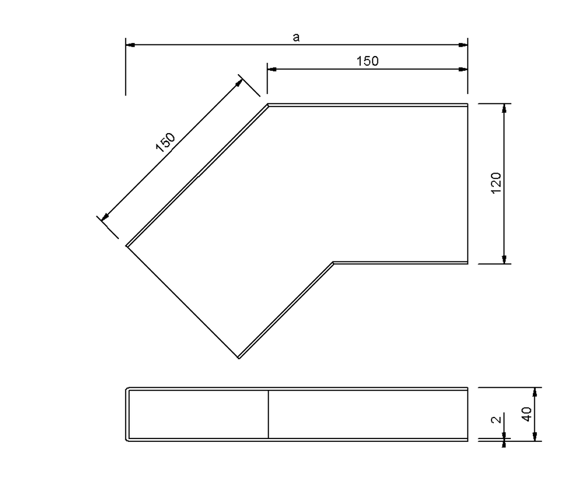
SitaKaskade Flat Coude, en acier inoxydable, n° de matériau 1.4301, section de tuyau 120 x 40 mm, permet de dévier la trajectoire du circuit d’écoulement. Fourniture et pose selon les règles de l'art.
In order for the external content to be
displayed at this location, you must accept
the cookies of the category
"Preferences". You
can adjust the cookie settings here.