SitaPipe PP
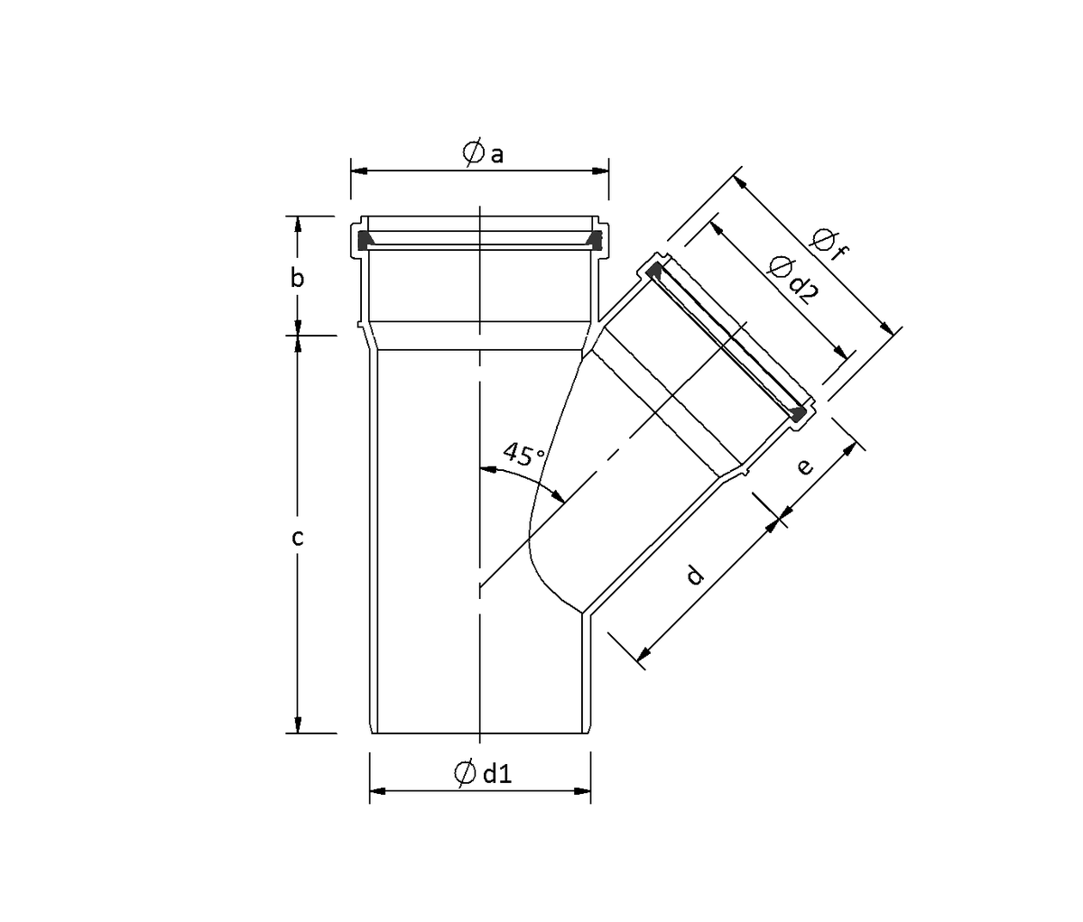
Embranchement 45°
Caractéristiques
- Surfaces internes blanches pour faciliter les inspections vidéo
- Résistance mécanique, capacité de charge mécanique très élevée, même avec des impacts jusqu'à -10°C
- Système résistant aux pressions négatives jusqu'à - 400 mbar et aux pressions positives jusqu'à 1,5 bar
- Bon confort acoustique : 16 dB(A) selon la norme EN 14366 et 18 dB(A) selon la norme DIN 4109 pour un écoulement de 2 l/s
- Écologique grâce à sa fabrication en matériaux entièrement recyclables
- Possibilité de raccordement avec d'autres matériaux comme SitaPipe Acier inoxydable, PE, PVC et PP
| Diamètre nominal DN | Diamètre extérieur DE (mm) | a (mm) | b (mm) | c (mm) | d (mm) | e (mm) | f (mm) | d1 (mm) | d2 (mm) |
|---|---|---|---|---|---|---|---|---|---|
| 100 | 110 | 128 | 59 | 219 | 111 | 59 | 128 | 110 | 110 |
| 100 | 110 | 129 | 59 | 171 | 81 | 52 | 91 | 110 | 75 |
| 125 | 125 | 146 | 65 | 226 | 113 | 59 | 129 | 125 | 110 |
| 125 | 125 | 146 | 64 | 247 | 129 | 64 | 146 | 125 | 125 |
| 150 | 160 | 185 | 77 | 249 | 127 | 59 | 129 | 160 | 110 |
| 150 | 160 | 185 | 77 | 263 | 129 | 65 | 146 | 160 | 125 |
| 150 | 160 | 185 | 77 | 277 | 161 | 77 | 185 | 160 | 160 |
| 70 | 75 | 91 | 52 | 168 | 81 | 52 | 91 | 75 | 75 |
| 100 | 110 | 129 | 59 | 123 | 53 | 46 | 64 | 110 | 50 |
| 125 | 125 | 146 | 65 | 150 | 51 | 46 | 64 | 125 | 50 |
| 50 | 50 | 64 | 46 | 123 | 51 | 46 | 64 | 50 | 50 |
| 70 | 75 | 91 | 54 | 128 | 56 | 46 | 64 | 75 | 50 |
| 90 | 90 | 106 | 56 | 130 | 51 | 46 | 64 | 90 | 50 |
| 90 | 90 | 106 | 56 | 187 | 91 | 56 | 106 | 90 | 90 |












