Skip to main content

SitaRetention

Twist klein zonder grindvanger

Productkenmerken

  • Ongevoelig voor weersinvloeden (UV-/IR-straling, neerslag, temperatuur, ozon, enz.)
  • Slag- en stootvast
  • Lange levensduur
  • Afzonderlijk inkortbaar

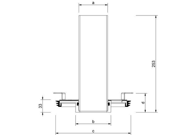
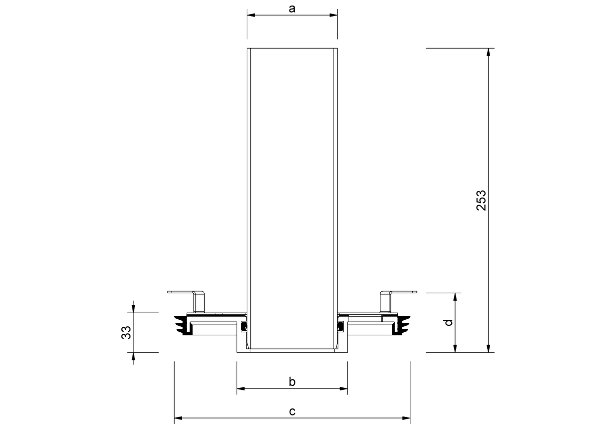
Technische tekening

Voor model/seriea (mm)b (mm)c (mm)d (mm)
SitaTrendy405715348
SitaStandard, SitaIndra759219650
Prestatiebeschrijving Artikelselectie