SitaPipe roestvrijstalen
verloopstuk
- Producten
SitaPipe roestvrijstalen
verloopstuk
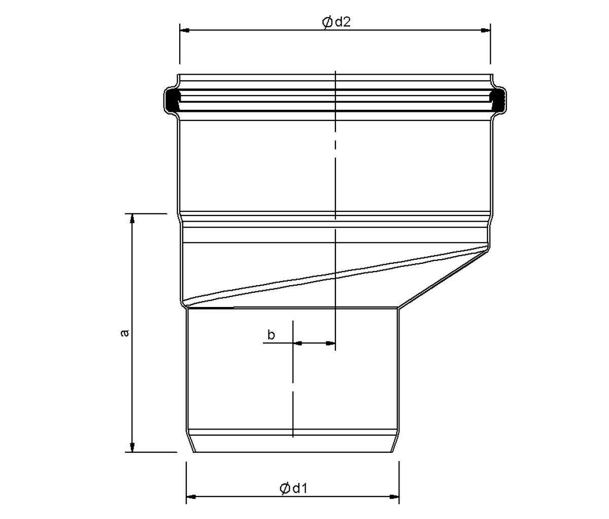
| Nominale diameter DN | Buitendiameter OD (mm) | a (mm) | b (mm) | d1 (mm) | d2 (mm) |
|---|---|---|---|---|---|
| 100 | 110 | 94 | 25 | 50 | 110 |
| 100 | 110 | 104 | 15 | 75 | 110 |
| 125 | 125 | 96 | 8 | 110 | 125 |
| 150 | 160 | 123 | 22 | 110 | 160 |
| 150 | 160 | 136 | 18 | 125 | 160 |
| 70 | 75 | 80 | 7 | 50 | 75 |
| 100 | 110 | 101 | 11 | 82 | 110 |
| 200 | 200 | 153 | 20 | 160 | 200 |
| 250 | 250 | 192 | 25 | 200 | 250 |
| 315 | 315 | 229 | 33 | 250 | 315 |
| 50 | 50 | 77 | 5 | 40 | 50 |
Prestatiebeschrijving
Installatievoorbeelden
MultiCAD und BIM-Daten
Artikelselectie
SitaPipe verloopstuk van roestvrij staal, materiaalnummer 1.4404, conform NBN EN 1124 als steekmofsysteem met af fabriek in de mof voorgemonteerde EPDM-lipafdichting. Spits toelopend, 20° afgeschuind buisuiteinde voor eenvoudige mofverbinding, excentrisch, als verloopkoppeling naar andere afmetingen. Leveren en plaatsen volgens de regels der kunst.
SitaPipe buis van roestvrij staal aan voetpunt in warmte-isolatiesysteem
1 SitaPipe reinigingsbuis roestvrij staal
2 SitaPipe excentrisch overgangsstuk roestvrij staal
3 SitaPipe buis roestvrij staal
4 SitaPipe buisbeugel roestvrij staal
5 SitaPipe verankeringsbeugel roestvrij staal
2 SitaPipe excentrisch overgangsstuk roestvrij staal
3 SitaPipe buis roestvrij staal
4 SitaPipe buisbeugel roestvrij staal
5 SitaPipe verankeringsbeugel roestvrij staal
Wandopbouw van binnen naar buiten conform algemeen erkende vaktechnische regels, met:
- Afwerkpleisterlaag en verflaag
- Thermische isolatie
- Wandconstructie
SitaVasant met grindvanger in niet-geventileerde dakconstructie
1 SitaPipe roestvrijstalen buis
2 SitaPipe buisbeugel roestvrij staal
3 SitaPipe verankeringsbeugel roestvrij staal
4 SitaPipe roestvrijstalen bocht
5 SitaAttika gevelafdekplaat
6 SitaMore afdichtslabbe
SitaVasant bestaande uit:
7.1 Buis
7.2 Dampschermplaat
7.3 Verankeringsbeugel
7.4 Dakkolk
8 SitaVasant Kiesfang
2 SitaPipe buisbeugel roestvrij staal
3 SitaPipe verankeringsbeugel roestvrij staal
4 SitaPipe roestvrijstalen bocht
5 SitaAttika gevelafdekplaat
6 SitaMore afdichtslabbe
SitaVasant bestaande uit:
7.1 Buis
7.2 Dampschermplaat
7.3 Verankeringsbeugel
7.4 Dakkolk
8 SitaVasant Kiesfang
Niet-geventileerde dakconstructie volgens de aaRdT met:
- Afdichting
- Warmte-isolatie
- Dampscherm
- Onderconstructie
SitaDSS Indra hoofdafvoerset voor ongeventileerde dakconstructies
SitaDSS Indra hoofdafwateringsset bestaande uit:
1.1 SitaPipe buis roestvrij staal
1.2 SitaPipe buisbeugel roestvrij staal
1.3 SitaPipe verankeringsbeugel roestvrij staal
1.4 SitaPipe bocht roestvrij staal 87,5°
1.5 SitaMore flexibele dampschermplaat
1.6 SitaIndra isolatieblok
1.7 SitaPipe buis roestvrij staal
1.8 SitaDSS Indra afvoerelement
1.9 SitaDSS Indra Airstop
1.10 SitaDSS Indra grindvang
1.11 SitaDSS Indra Airstop bevestigingsring
2 SitaPipe Edelstahl borgklem
3 SitaPipe Edelstahl reinigingsbuis
4 SitaPipe Edelstahl excentrisch overgangsstuk
5 SitaPipe Edelstahl buisbeugel
1.1 SitaPipe buis roestvrij staal
1.2 SitaPipe buisbeugel roestvrij staal
1.3 SitaPipe verankeringsbeugel roestvrij staal
1.4 SitaPipe bocht roestvrij staal 87,5°
1.5 SitaMore flexibele dampschermplaat
1.6 SitaIndra isolatieblok
1.7 SitaPipe buis roestvrij staal
1.8 SitaDSS Indra afvoerelement
1.9 SitaDSS Indra Airstop
1.10 SitaDSS Indra grindvang
1.11 SitaDSS Indra Airstop bevestigingsring
2 SitaPipe Edelstahl borgklem
3 SitaPipe Edelstahl reinigingsbuis
4 SitaPipe Edelstahl excentrisch overgangsstuk
5 SitaPipe Edelstahl buisbeugel
Ongeventileerde dakopbouw conform algemeen erkende vaktechnische regels, met:
- Afdichting
- Thermische isolatie
- Dampscherm
- Onderconstructie
- Opening in de dakopstand met voegband
SitaDSS Indra noodafvoerset met standleiding voor ongeventileerde dakconstructies
SitaDSS Indra noodafvoerset bestaande uit:
1.1 SitaPipe buis roestvrij staal
1.2 SitaPipe buisbeugel roestvrij staal
1.3 SitaPipe verankeringsbeugel roestvrij staal
1.4 SitaPipe bocht roestvrij staal 87,5°
1.5 SitaMore flexibele dampschermplaat
1.6 SitaIndra isolatieblok
1.7 SitaPipe buis roestvrij staal
1.8 SitaDSS Indra afvoerelement
1.9 Overloopelement met Airstop
1.10 Afdichtring
2 SitaPipe verankeringsbeugel roestvrij staal
3 SitaPipe bocht 45° roestvrij staal
1.1 SitaPipe buis roestvrij staal
1.2 SitaPipe buisbeugel roestvrij staal
1.3 SitaPipe verankeringsbeugel roestvrij staal
1.4 SitaPipe bocht roestvrij staal 87,5°
1.5 SitaMore flexibele dampschermplaat
1.6 SitaIndra isolatieblok
1.7 SitaPipe buis roestvrij staal
1.8 SitaDSS Indra afvoerelement
1.9 Overloopelement met Airstop
1.10 Afdichtring
2 SitaPipe verankeringsbeugel roestvrij staal
3 SitaPipe bocht 45° roestvrij staal
Ongeventileerde dakopbouw conform algemeen erkende vaktechnische regels, met:
- Afdichting
- Thermische isolatie
- Dampscherm
- Onderconstructie
- Opening in de dakopstand met voegband
SitaEasy Go als hoofdafvoer voor ongeventileerde dakconstructies
1 SitaPipe roestvrijstalen buis
2 SitaPipe buisbeugel roestvrij staal
3 SitaPipe verankeringsbeugel roestvrij staal
4 SitaPipe roestvrijstalen bocht
5 SitaAttika gevelafdekplaat
6 SitaMore flexibele dampschermplaat
7 SitaEasy Go
SitaEasy grindvanger bestaande uit:
8.1 Sluiting
8.2 Grindvangerkorf
2 SitaPipe buisbeugel roestvrij staal
3 SitaPipe verankeringsbeugel roestvrij staal
4 SitaPipe roestvrijstalen bocht
5 SitaAttika gevelafdekplaat
6 SitaMore flexibele dampschermplaat
7 SitaEasy Go
SitaEasy grindvanger bestaande uit:
8.1 Sluiting
8.2 Grindvangerkorf
9 SitaPipe roestvrijstalen reinigingsbuis
Ongeventileerde dakopbouw conform algemeen erkende vaktechnische regels, met:
- Afdichting
- Thermische isolatie
- Dampscherm
- Onderconstructie
- Opening in de dakopstand met voegband
SitaTurbo verhoogd ingebouwd met standleiding voor ongeventileerde dakconstructies
1 SitaPipe buis roestvrij staal
2 SitaPipe buisbeugel roestvrij staal
3 SitaPipe verankeringsbeugel roestvrij staal
4 SitaPipe bocht 87,5° roestvrij staal
5 SitaAttika gevelafdekplaat
6 SitaMore flexibele dampschermplaat
SitaRondo bestaande uit:
7.1 Bladvanger met bevestigingshaak
7.2 Losse flens en afdichtmanchetten
7.3 Sluitringen, moeren en beschermkappen
2 SitaPipe buisbeugel roestvrij staal
3 SitaPipe verankeringsbeugel roestvrij staal
4 SitaPipe bocht 87,5° roestvrij staal
5 SitaAttika gevelafdekplaat
6 SitaMore flexibele dampschermplaat
SitaRondo bestaande uit:
7.1 Bladvanger met bevestigingshaak
7.2 Losse flens en afdichtmanchetten
7.3 Sluitringen, moeren en beschermkappen
8 SitaPipe bocht roestvrij staal 45°
Ongeventileerde dakopbouw conform algemeen erkende vaktechnische regels, met:
- Afdichting
- Thermische isolatie
- Dampscherm
- Onderconstructie
- Opening in de dakopstand met voegband
SitaKaskade doorvoer Fluid met SitaCompact voor de hoofdafvoer in ongeventileerde dakopbouw
1 SitaCompact isolatie-element
2 SitaCompact verticaal
SitaCompact verhogingselement bestaande uit:
3.1 Afvoerelement
3.2 Dichtingsring
SitaDrain® oppervlakteframe bestaande uit:
4.1 Frame
4.2 Inspectierooster
5 SitaKaskade doorvoer Fluid
6 SitaPipe roestvrijstalen verankeringsbeugel
7 SitaPipe roestvrijstalen buis
8 SitaPipe roestvrijstalen buisbeugel
9 SitaAttika gevelafdekplaat
10 SitaPipe roestvrijstalen bocht
11 SitaMore flexibele dampschermplaat
2 SitaCompact verticaal
SitaCompact verhogingselement bestaande uit:
3.1 Afvoerelement
3.2 Dichtingsring
SitaDrain® oppervlakteframe bestaande uit:
4.1 Frame
4.2 Inspectierooster
5 SitaKaskade doorvoer Fluid
6 SitaPipe roestvrijstalen verankeringsbeugel
7 SitaPipe roestvrijstalen buis
8 SitaPipe roestvrijstalen buisbeugel
9 SitaAttika gevelafdekplaat
10 SitaPipe roestvrijstalen bocht
11 SitaMore flexibele dampschermplaat
Ongeventileerde dakopbouw met bekledingsplaten op dragers conform algemeen erkende vaktechnische regels, met:
- Bekledingsplaten op dragers
- Beschermmat
- Afdichting
- Thermische isolatie
- Dampscherm
- Onderconstructie
SitaKaskade voor ongeventileerde dakconstructies met bekledingsplaten op dragers en overgang naar standleiding in warmte-isolatiesysteem
SitaKaskade Inside voor standleiding bestaande uit:
1.1 SitaPipe roestvrij staal bocht 87,5°
1.2 SitaPipe roestvrij staal verankeringsbeugel
1.3 SitaMore flexibele dampschermplaat
1.4 SitaKaskade Inside
1.5 SitaKaskade Inside losse flens met afdichtmanchetten, moeren, sluitringen, beschermkappen
1.6 SitaPipe roestvrij staal bocht 30°
1.7 SitaPipe roestvrij staal bocht 15°
2 SitaPipe Edelstahl buis
3 SitaPipe Edelstahl buisbeugel
4 SitaPipe Edelstahl borgklem
1.1 SitaPipe roestvrij staal bocht 87,5°
1.2 SitaPipe roestvrij staal verankeringsbeugel
1.3 SitaMore flexibele dampschermplaat
1.4 SitaKaskade Inside
1.5 SitaKaskade Inside losse flens met afdichtmanchetten, moeren, sluitringen, beschermkappen
1.6 SitaPipe roestvrij staal bocht 30°
1.7 SitaPipe roestvrij staal bocht 15°
2 SitaPipe Edelstahl buis
3 SitaPipe Edelstahl buisbeugel
4 SitaPipe Edelstahl borgklem
Ongeventileerde dakopbouw met bekledingsplaten op dragers conform algemeen erkende vaktechnische regels, met:
- Bekledingsplaten op dragers
- Beschermmat
- Afdichting
- Thermische isolatie
- Dampscherm
- Onderconstructie
SitaCompact Fluid lijnafwatering voor balkons met vloeibare kunststofafdichting en bekledingsplaten
1 SitaPipe Edelstahl buis
2 SitaAttika gevelafdekplaat
3 SitaCompact Fluid opzetstuk
4 SitaCompact Fluid
5 SitaCompact Fluid vlak rooster
6 SitaPipe Edelstahl buisbeugel
7 SitaCompact Fluid hoogtecompensatiestuk
8 SitaCompact Fluid buissteun
2 SitaAttika gevelafdekplaat
3 SitaCompact Fluid opzetstuk
4 SitaCompact Fluid
5 SitaCompact Fluid vlak rooster
6 SitaPipe Edelstahl buisbeugel
7 SitaCompact Fluid hoogtecompensatiestuk
8 SitaCompact Fluid buissteun
Dakopbouw 1 met vloeibare kunststof volgens algemeen erkende vaktechnische regels met:
Dakopbouw 2 met vloeibare kunststof volgens algemeen erkende vaktechnische regels met:
- Vloeibare kunststofafdichting
- Onderconstructie
Dakopbouw 2 met vloeibare kunststof volgens algemeen erkende vaktechnische regels met:
- Bekledingsplaten
- Beschermmat
- Vloeibare kunststofafdichting
- Onderconstructie
In order for the external content to be
displayed at this location, you must accept
the cookies of the category
"Preferences".
You can adjust the cookie settings here.
You can adjust the cookie settings here.












