SitaSani® DSS
wpust modernizacyjny
- Produkty
SitaSani DSS
wpust modernizacyjny
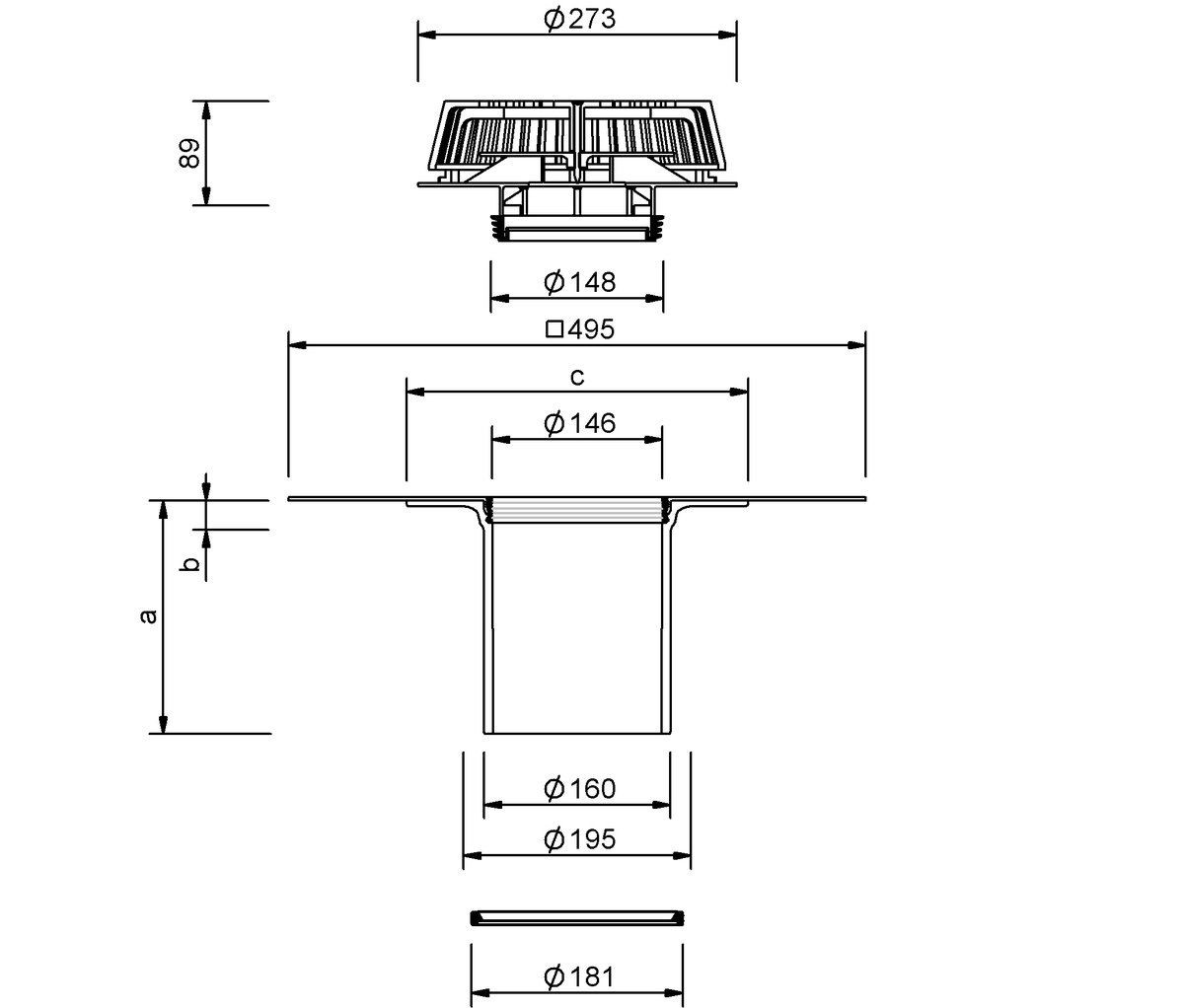
| Średnica nominalna DN | Średnica zewnętrzna OD (mm) | a (mm) | b (mm) | c (mm) |
|---|---|---|---|---|
| 160 | 160 | 550 | 60 | 320 |
| 160 | 160 | 200 | 25 | 290 |
Wpust modernizacyjny SitaSani® 160 DSS, z poliuretanu, izolowany termicznie, do modernizacji wpustów dachowych do odwadniania ciśnieniowego o średnicy górnej części 160 mm, długość elementu 200 mm lub 550 mm, z piankowym, zgodnym z preferencjami kołnierzem przyłączeniowym do jednorodnego połączenia uszczelnienia dachu, z pierścieniem mocującym umożliwiającym dodatkowe zabezpieczenie kołnierza przyłączeniowego i do zamocowania koszyka żwirowego, łącznie z blokadą Airstop i pierścieniem uszczelniającym, profesjonalna dostawa i montaż. Stare uszczelki należy sprawdzić we własnym zakresie pod kątem ponownego zastosowania.
SitaSani 160 DSS w niewentylowanej konstrukcji dachowej
1.1 Korpus podstawowy
1.2 Airstop
1.3 Śruba montażowa
1.4 Osadnik żwiru
1.5 Mocowanie do Airstop
2 Pierścień uszczelniający SitaSani® 160 DSS
- uszczelnieniem
- izolacją cieplną
- paroizolacją
- konstrukcją dolną












