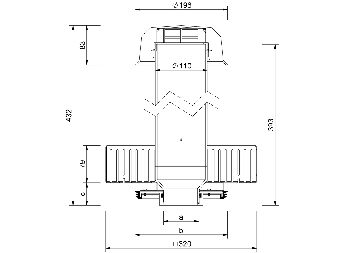
SitaRetention Twist с листвоуловителем, из полиамида (корпус и защитный колпак) и ПЭ (вентиляционная труба), с градуированной регулировочной заслонкой из нержавеющей стали для контролируемого отвода дождевой воды, для установки в кровельные воронки серий SitaStandard, SitaIndra или SitaTrendy. Вентиляционную трубу можно укоротить на месте монтажа, с уплотнительными кольцами из ЭПДМ, поставка и квалифицированный монтаж.
In order for the external content to be
displayed at this location, you must accept
the cookies of the category
"Preferences". You
can adjust the cookie settings here.