SitaTrendy
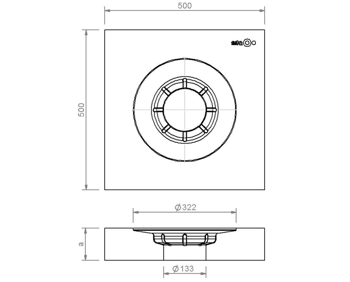
Insulating body for extension element
| a (mm) |
|---|
| 60 |
| 100 |
Performance text
Installation Examples
MultiCAD und BIM-Daten
Downloads
Article selection
SitaTrendy insulating body for extension unit, made of polyurethane, for easy bonding to the vapour barrier, without mechanical fastening of the extension unit by bonding to the insulation body, size 500 x 500 x 100 mm or 500 x 500 x 60 mm, thermal conductivity lambda=0.025 W/mK, compressive strength 200 kPa, density approx. 50 kg/m³, as an installation aid and thermal insulation for the prevention of thermal bridges, supply and install to professional standards.
SitaTrendy in a non-ventilated roof structure
1 SitaMore reinforcement plate
2 SitaTrendy insulating body for extension unit
SitaTrendy screw-on flange extension unit, consisting of:
3.1 Sealing sleeves and screw-on flange
3.2 Sealing ring
3.3 Base body
SitaTrendy vertical consisting of:
4.1 Dome grate cover
4.2 Dome grate base body
4.3 Base body with connection sleeve of choice
5 SitaTrendy insulating body for outlet
2 SitaTrendy insulating body for extension unit
SitaTrendy screw-on flange extension unit, consisting of:
3.1 Sealing sleeves and screw-on flange
3.2 Sealing ring
3.3 Base body
SitaTrendy vertical consisting of:
4.1 Dome grate cover
4.2 Dome grate base body
4.3 Base body with connection sleeve of choice
5 SitaTrendy insulating body for outlet
Non-ventilated roof structure to the general rules of engineering with:
- Waterproof membrane
- Thermal insulation
- Vapour barrier
- Substructure
SitaTrendy screw-on flange in a non-ventilated roof structure with terrace slabs in a gravel bed
1 SitaTrendy insulating body for extension unit
SitaTrendy extension unit consisting of:
2.1 Sealing ring
2.2 Base body
SitaMore terrace kit consisting of:
3.1 End grate
3.2 Housing
3.3 Height adjustment ring
SitaTrendy screw-on flange vertical consisting of:
4.1 Base body
4.2 Loose flange, seals and screws
5 SitaTrendy insulating body for outlet
SitaTrendy extension unit consisting of:
2.1 Sealing ring
2.2 Base body
SitaMore terrace kit consisting of:
3.1 End grate
3.2 Housing
3.3 Height adjustment ring
SitaTrendy screw-on flange vertical consisting of:
4.1 Base body
4.2 Loose flange, seals and screws
5 SitaTrendy insulating body for outlet
Non-ventilated roof structure with slab paving in gravel bed to the general rules of engineering with:
- Slab paving
- Grit or gravel bed
- Drainage mat
- Protective mat
- Sealing
- Thermal insulation
- Vapour barrier
- Substructure
SitaTrendy retaining element for emergency drainage as a waterspout in a ventilated roof structure
SitaMore retaining element consisting of:
1.1 Height-adjustable rubber-metal buffers
1.2 Closed cover
1.3 Sealing ring
1.4 Base body
SitaTrendy extension unit consisting of:
2.1 Base body
2.2 Sealing ring
3 SitaTrendy insulating body for extension unit
4 SitaTrendy vertical
5 SitaPipe Edelstahl safety clamp
6 SitaPipe Edelstahl bend
7 SitaPipe Edelstahl pipe clamp
8 SitaPipe Edelstahl pipe
9 SitaAttika cladding cover plate
1.1 Height-adjustable rubber-metal buffers
1.2 Closed cover
1.3 Sealing ring
1.4 Base body
SitaTrendy extension unit consisting of:
2.1 Base body
2.2 Sealing ring
3 SitaTrendy insulating body for extension unit
4 SitaTrendy vertical
5 SitaPipe Edelstahl safety clamp
6 SitaPipe Edelstahl bend
7 SitaPipe Edelstahl pipe clamp
8 SitaPipe Edelstahl pipe
9 SitaAttika cladding cover plate
Non-ventilated roof structure to the general rules of engineering with:
- Sealing
- Thermal insulation
- Vapour barrier
- Substructure
- Parapet lead-through with joint tape
In order for the external content to be
displayed at this location, you must accept
the cookies of the category
"Preferences".
You can adjust the cookie settings here.
You can adjust the cookie settings here.
| SitaTrendy | Article no. | |||
|---|---|---|---|---|
Insulating body for extension element | ||||
| 100 mm | SitaTrendy extension unit | 159005 | Show product | |
| 60 mm | SitaTrendy extension unit | 159006 | Show product |












