SitaTrendy
Воронка для классического водоотвода
- Продукция
SitaTrendy
Воронка для классического водоотвода
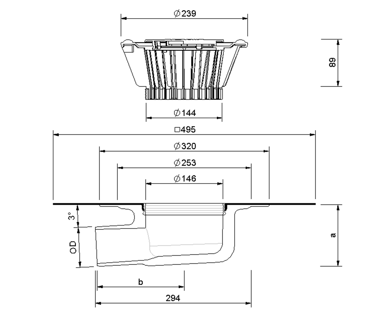
| Номинальный диаметр DN | Наружный диаметр OD (мм) | Размер выемки (мм x мм) | a (мм) | b (мм) |
|---|---|---|---|---|
| 100 | 110 | 250 mm x 350 mm | 153 | 162 |
| 70 | 75 | 250 mm x 350 mm | 117 | 165 |
| 125 | 125 | 250 mm x 420 mm | 161 | 241 |
SitaTrendy, угловая, из полиуретана, утепленная, согласно DIN EN 1253-2, с номинальными диаметрами DN 70, DN 100 и DN 125. Для прямого подключения к трубам с раструбом, для самотечных систем водостока, с большим соединительным фартуком (495 x 495 мм) из материала на выбор заказчика, в соответствии с материалом гидроизоляции кровли, и с фиксирующим кольцом для дополнительной надежности крепления соединительного фартука и установки прилагаемого листвоуловителя, с вваренным обогревательным элементом согласно EN 60335-1/2, и кабелем длиной 2,0 м для прямого подключения к сети 230 В с мощностью нагрева прибл. 10 Вт. Поставка и квалифицированный монтаж.
|
Высота подпора воды (мм) | ||||||||||||||||||||
|---|---|---|---|---|---|---|---|---|---|---|---|---|---|---|---|---|---|---|---|---|
| Номинальный диаметр DN | 5 | 10 | 15 | 20 | 25 | 30 | 35 | 40 | 45 | 50 | 55 | 60 | 65 | 70 | 75 | 80 | 85 | 90 | 95 | 100 |
| 70 | 0.5 | 1.1 | 1.6 | 2.6 | 3.5 | 4.5 | 5.4 | 6.5 | 7.5 | 8.5 | 9.5 | 10.8 | 12.1 | 12.1 | 12.1 | 12.1 | 12.1 | 12.1 | 12.1 | 12.1 |
| 100 | 0.5 | 1.2 | 1.8 | 2.7 | 3.6 | 4.6 | 5.6 | 6.7 | 7.8 | 9 | 10.2 | 11.9 | 13.5 | 13.5 | 13.5 | 13.5 | 13.5 | 13.5 | 13.5 | 13.5 |
| 125 | 0.6 | 1.5 | 2.4 | 3.1 | 3.8 | 4.8 | 5.7 | 6.8 | 7.9 | 9.5 | 11 | 12.4 | 13.8 | 13.8 | 13.8 | 13.8 | 13.8 | 13.8 | 13.8 | 13.8 |
|
Высота подпора воды (мм) | ||||||||||||||||||||
|---|---|---|---|---|---|---|---|---|---|---|---|---|---|---|---|---|---|---|---|---|
| Номинальный диаметр DN | 5 | 10 | 15 | 20 | 25 | 30 | 35 | 40 | 45 | 50 | 55 | 60 | 65 | 70 | 75 | 80 | 85 | 90 | 95 | 100 |
| 70 | 1.2 | 2.2 | 3.1 | 4.6 | 6 | 7.5 | 8.9 | 10.5 | 12 | 12.6 | 13.1 | 13.6 | 14 | 14 | 14 | 14 | 14 | 14 | 14 | 14 |
| 100 | 1.2 | 2.3 | 3.3 | 4.7 | 6 | 7.5 | 9 | 10.5 | 11.9 | 14.5 | 17 | 19.9 | 22.8 | 22.8 | 22.8 | 22.8 | 22.8 | 22.8 | 22.8 | 22.8 |
You can adjust the cookie settings here.












