SitaTrendy
Conventional outlet
- Products
SitaTrendy
Conventional outlet
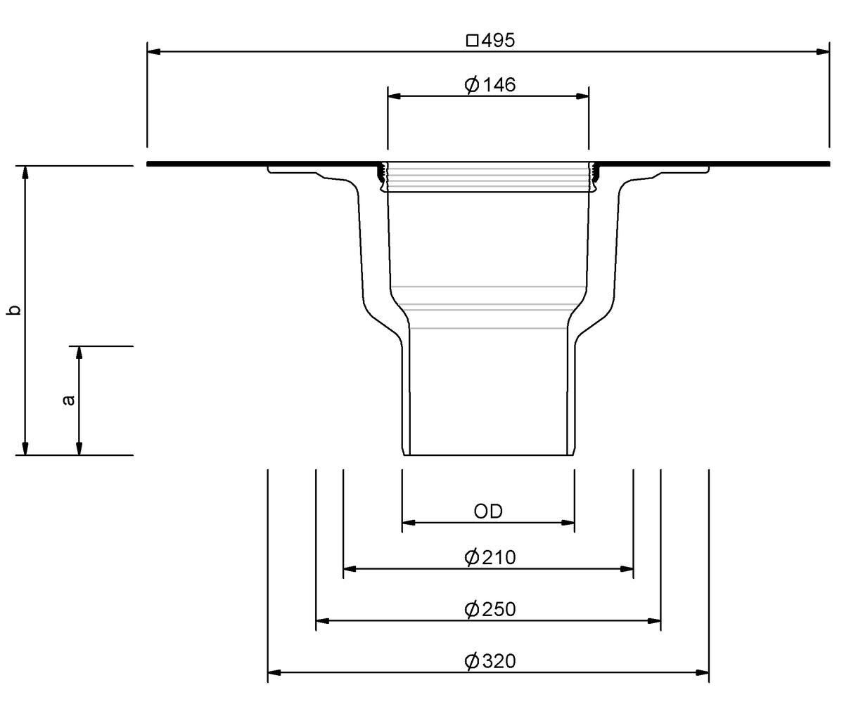
| Size DN | External diameter OD (mm) | Opening/Core borehole (mm) | a (mm) | b (mm) |
|---|---|---|---|---|
| 70 | 75 | 250 | 63 | 210 |
| 100 | 110 | 250 | 75 | 210 |
| 125 | 125 | 250 | 79 | 210 |
Performance text
Streamflow
Discharge rate according to DIN EN 1253-2 in l/s
Discharge rate according to DIN EN 1253-2 with retaining element for emergency drainage in l/s
Hier finden Sie eine Übersicht über alle verfügbaren Abflussmengen.
Installation Examples
Downloads
DWG EB_SitaTrendy_mit_SitaDrain_Terra_HE_mit Plattenbelag_im_Splittbett.DWG
DWG EB_SitaTrendy_NE_mit_Anstauelement_als Speier_im_nicht_beluefteten_Dachaufbau.DWG
DWG EB_SitaTrendy_mit_Anstauelment_fuer_die_Notentwaesserung_im_Gruendach.DWG
PDF SitaTrendy_und_SitaDrain_Terra_bei_Plattenbelag_auf_Splittbett_ohne_Waermedaemmung.pdf
PDF SitaTrendy_mit_Anstauelement_fuer_die_Notentwaesserung_als_Speier_im_beluefteten_Dachaufbau.pdf
PDF SitaTrendy_mit_Anstauelement_im_nicht_beluefteten_Dachaufbau_mit_extensiver_Begruenung.pdf
PDF TechnischeZeichnung_OK150310_en.pdf
PDF TechnischeZeichnung_OK150500_en.pdf
PDF TechnischeZeichnung_OK150510_en.pdf
PDF TechnischeZeichnung_OK150700_en.pdf
PDF TechnischeZeichnung_OK150710_en.pdf
DWG TZ_DB_SitaTrendy_senkrecht_ohne_Kiesfang_DN100.DWG
DWG TZ_DB_SitaTrendy_senkrecht_ohne_Kiesfang_DN125.DWG
DWG TZ_DB_SitaTrendy_senkrecht_ohne_Kiesfang_DN70.DWG
Article selection
SitaTrendy vertical without dome grate, made of polyurethane, thermally insulated, to DIN EN 1253-2, in sizes DN 70, DN 90, DN 100 and DN 125. For direct connection to pipes with plug-in coupler, for conventional drainage, with large connection sleeve of choice (495 mm x 495 mm) to suit the roofing membrane and with fixing ring for additional securing of the connection sleeve, with foamed-in heating element to EN 60335-1/2 and 2.0 m cable for connecting direct to 230 V with a heat rating of approx. 10 W, supply and install to professional standards.
|
Back-up Heigh (mm) | ||||||||||||||||||||
|---|---|---|---|---|---|---|---|---|---|---|---|---|---|---|---|---|---|---|---|---|
| Size DN | 5 | 10 | 15 | 20 | 25 | 30 | 35 | 40 | 45 | 50 | 55 | 60 | 65 | 70 | 75 | 80 | 85 | 90 | 95 | 100 |
| 70 | 0.6 | 1.4 | 2.2 | 3.1 | 3.9 | 4.7 | 5.5 | 6.6 | 7.6 | 8.6 | 9.5 | 10.4 | 11.3 | 11.3 | 11.3 | 11.3 | 11.3 | 11.3 | 11.3 | 11.3 |
| 100 | 0.6 | 1.5 | 2.3 | 3.3 | 4.3 | 5.2 | 6.1 | 7.3 | 8.5 | 9.4 | 10.3 | 11 | 11.7 | 11.7 | 11.7 | 11.7 | 11.7 | 11.7 | 11.7 | 11.7 |
| 125 | 0.7 | 1.6 | 2.4 | 3.3 | 4.2 | 5.1 | 5.9 | 7.3 | 8.7 | 10.1 | 11.4 | 12.7 | 14 | 14 | 14 | 14 | 14 | 14 | 14 | 14 |
|
Back-up Heigh (mm) | ||||||||||||||||||||
|---|---|---|---|---|---|---|---|---|---|---|---|---|---|---|---|---|---|---|---|---|
| Size DN | 5 | 10 | 15 | 20 | 25 | 30 | 35 | 40 | 45 | 50 | 55 | 60 | 65 | 70 | 75 | 80 | 85 | 90 | 95 | 100 |
| 70 | 1.2 | 2.1 | 2.9 | 4.4 | 5.8 | 7.3 | 8.8 | 10.5 | 12.1 | 12.4 | 12.6 | 13.1 | 13.5 | 13.5 | 13.5 | 13.5 | 13.5 | 13.5 | 13.5 | 13.5 |
| 100 | 1.2 | 2.3 | 3.3 | 4.7 | 6.1 | 7.8 | 9.4 | 11.4 | 13.3 | 15.2 | 17 | 19.6 | 22.2 | 22.2 | 22.2 | 22.2 | 22.2 | 22.2 | 22.2 | 22.2 |
| 125 | 1.2 | 2.2 | 3.2 | 4.6 | 6 | 7.5 | 9 | 10.7 | 12.4 | 14.3 | 16.2 | 18.5 | 20.8 | 20.8 | 20.8 | 20.8 | 20.8 | 20.8 | 20.8 | 20.8 |
SitaTrendy screw-on flange in a non-ventilated roof structure with terrace slabs in a gravel bed
1 SitaTrendy insulating body for extension unit
SitaTrendy extension unit consisting of:
2.1 Sealing ring
2.2 Base body
SitaMore terrace kit consisting of:
3.1 End grate
3.2 Housing
3.3 Height adjustment ring
SitaTrendy screw-on flange vertical consisting of:
4.1 Base body
4.2 Loose flange, seals and screws
5 SitaTrendy insulating body for outlet
SitaTrendy extension unit consisting of:
2.1 Sealing ring
2.2 Base body
SitaMore terrace kit consisting of:
3.1 End grate
3.2 Housing
3.3 Height adjustment ring
SitaTrendy screw-on flange vertical consisting of:
4.1 Base body
4.2 Loose flange, seals and screws
5 SitaTrendy insulating body for outlet
Non-ventilated roof structure with slab paving in gravel bed to the general rules of engineering with:
- Slab paving
- Grit or gravel bed
- Drainage mat
- Protective mat
- Sealing
- Thermal insulation
- Vapour barrier
- Substructure
SitaTrendy and SitaDrain® Terra for the main drainage of slab paving on gravel bed without thermal insulation
1 SitaPipe Edelstahl pipe
2 SitaTrendy insulating body for outlet
3 SitaTrendy vertical
4 SitaDrain gravel strip
SitaDrain® Terra consisting of:
5.1 Inspection grate
5.2 Frame
5.3 Height-adjustable rubber-metal buffers
2 SitaTrendy insulating body for outlet
3 SitaTrendy vertical
4 SitaDrain gravel strip
SitaDrain® Terra consisting of:
5.1 Inspection grate
5.2 Frame
5.3 Height-adjustable rubber-metal buffers
Ventilated roof structure with slab paving in gravel bed to the general rules of engineering with:
- Slab paving
- Grit or gravel bed
- Drainage mat
- Protective mat
- Waterproof membrane
- Substructure
SitaTrendy retaining element for emergency drainage as a waterspout in a ventilated roof structure
SitaMore retaining element consisting of:
1.1 Height-adjustable rubber-metal buffers
1.2 Closed cover
1.3 Sealing ring
1.4 Base body
SitaTrendy extension unit consisting of:
2.1 Base body
2.2 Sealing ring
3 SitaTrendy insulating body for extension unit
4 SitaTrendy vertical
5 SitaPipe Edelstahl safety clamp
6 SitaPipe Edelstahl bend
7 SitaPipe Edelstahl pipe clamp
8 SitaPipe Edelstahl pipe
9 SitaAttika cladding cover plate
1.1 Height-adjustable rubber-metal buffers
1.2 Closed cover
1.3 Sealing ring
1.4 Base body
SitaTrendy extension unit consisting of:
2.1 Base body
2.2 Sealing ring
3 SitaTrendy insulating body for extension unit
4 SitaTrendy vertical
5 SitaPipe Edelstahl safety clamp
6 SitaPipe Edelstahl bend
7 SitaPipe Edelstahl pipe clamp
8 SitaPipe Edelstahl pipe
9 SitaAttika cladding cover plate
Non-ventilated roof structure to the general rules of engineering with:
- Sealing
- Thermal insulation
- Vapour barrier
- Substructure
- Parapet lead-through with joint tape
SitaTrendy with retaining element for emergency drainage in a non-ventilated roof structure with extensive greenery
1 SitaTrendy insulating body for outlet
2 SitaTrendy vertical
SitaTrendy extension unit consisting of:
3.1 Sealing ring
3.2 Base body
SitaMore retaining element consisting of:
4.1 Base body
4.2 Sealing ring
4.3 Height-adjustable rubber-metal buffers
4.4 Closed cover
2 SitaTrendy vertical
SitaTrendy extension unit consisting of:
3.1 Sealing ring
3.2 Base body
SitaMore retaining element consisting of:
4.1 Base body
4.2 Sealing ring
4.3 Height-adjustable rubber-metal buffers
4.4 Closed cover
Non-ventilated roof structure with extensive greenery to the general rules of engineering with:
- Extensive roof greenery with vegetation layer according to system supplier
- Protection, drain and filter layer according to system supplier
- Sealing
- Thermal insulation
- Vapour barrier
- Substructure
AutoCAD
DWG EB_SitaTrendy_mit_SitaMore_Terrassenbausatz_im_nicht_beluefteten_Dachaufbau_mit_Platten_im_Splittbett.DWGDWG EB_SitaTrendy_mit_SitaDrain_Terra_HE_mit Plattenbelag_im_Splittbett.DWG
DWG EB_SitaTrendy_NE_mit_Anstauelement_als Speier_im_nicht_beluefteten_Dachaufbau.DWG
DWG EB_SitaTrendy_mit_Anstauelment_fuer_die_Notentwaesserung_im_Gruendach.DWG
Installation Examples
PDF SitaTrendy_Schraubflansch_im_nicht_beluefteten_Dachaufbau_mit_Terrassenplatten_im_Splittbett.pdfPDF SitaTrendy_und_SitaDrain_Terra_bei_Plattenbelag_auf_Splittbett_ohne_Waermedaemmung.pdf
PDF SitaTrendy_mit_Anstauelement_fuer_die_Notentwaesserung_als_Speier_im_beluefteten_Dachaufbau.pdf
PDF SitaTrendy_mit_Anstauelement_im_nicht_beluefteten_Dachaufbau_mit_extensiver_Begruenung.pdf
Technical drawings
PDF TechnischeZeichnung_OK150300_en.pdfPDF TechnischeZeichnung_OK150310_en.pdf
PDF TechnischeZeichnung_OK150500_en.pdf
PDF TechnischeZeichnung_OK150510_en.pdf
PDF TechnischeZeichnung_OK150700_en.pdf
PDF TechnischeZeichnung_OK150710_en.pdf
DWG TZ_DB_SitaTrendy_senkrecht_ohne_Kiesfang_DN100.DWG
DWG TZ_DB_SitaTrendy_senkrecht_ohne_Kiesfang_DN125.DWG
DWG TZ_DB_SitaTrendy_senkrecht_ohne_Kiesfang_DN70.DWG
+












