SitaTurbo
Max inverted roof
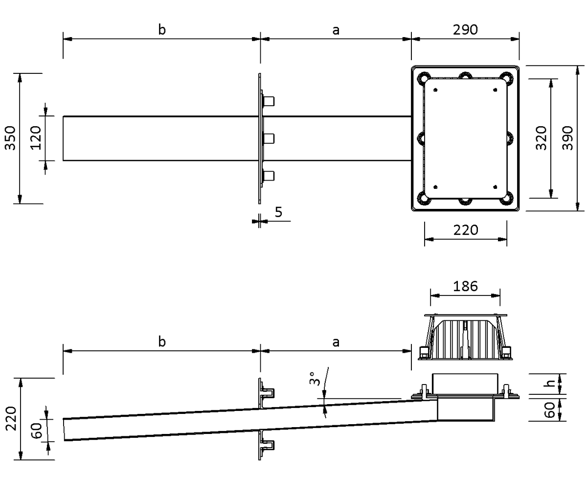
| Opening/Core borehole (mm) | Pipe cross-section (mm x mm) | A | B | H |
|---|---|---|---|---|
| 170 | 120 x 60 | 450 mm | 700 mm | Height of loose retaining flange according to specification |
| 170 | 120 x 60 | Distance to the parapet | Parapet width plus overhang | Height of loose retaining flange according to specification |
+












