SitaSani®
Sanierungsgully
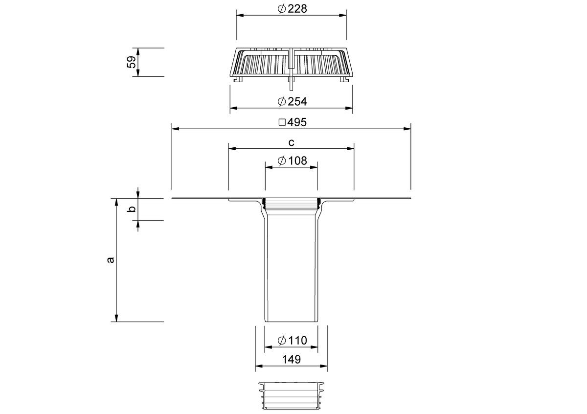
| Nennweite DN | Außendurchmesser OD (mm) | a (mm) | b (mm) | c (mm) | Rückstausicher bei zu sanierenden Innendurchmessern von–bis (mm) mit Lippendichtring | Rückstausicher bei zu sanierenden Innendurchmessern von–bis (mm) mit Profildichtring |
|---|---|---|---|---|---|---|
| 115 | 110 | 255 | 45 | 260 | 115 - 130 | - |
SitaSani® 115 Sanierungsgully, aus Polyurethan, Höhe 255 mm, wärmegedämmt, nach DIN EN 1253-2, Abflussmenge 5,7 l/s bei 35 mm Stauhöhe, zur Sanierung von Innendurchmessern von 115–130 mm. Mit großer eingeschäumter Wunschanschlussmanschette (495 mm x 495 mm) zur homogenen Verbindung mit der Dachabdichtung. Mit Fixierring zur zusätzlichen Sicherung der Anschlussmanschette und zur Aufnahme des Kiesfangs. Komplett inklusive Kiesfang, Verlängerungsrohr, Gleitmittel und mehrlippigem Dichtring zur Rückstausicherung, liefern und fachgerecht einbauen.
|
Stauhöhe (mm) | ||||||||||||||||||||
|---|---|---|---|---|---|---|---|---|---|---|---|---|---|---|---|---|---|---|---|---|
| Ausführung | 5 | 10 | 15 | 20 | 25 | 30 | 35 | 40 | 45 | 50 | 55 | 60 | 65 | 70 | 75 | 80 | 85 | 90 | 95 | 100 |
| 255 mm | 0.5 | 1.2 | 1.9 | 2.8 | 3.6 | 4.7 | 5.7 | 7.1 | 8.5 | 10.1 | 11.6 | 11.6 | 11.6 | 11.6 | 11.6 | 11.6 | 11.6 | 11.6 | 11.6 | 11.6 |
SitaSani als Topfsanierung im nicht belüfteten Dachaufbau
1.1 Profildichtring
1.2 Grundkörper
1.3 Kiesfang
- Abdichtung
- Wärmedämmung
- Dampfsperre
- Unterkonstruktion
SitaSani als Rohrsanierung im nicht belüfteten Dachaufbau
1.1 Dichtring
1.2 Grundkörper
1.3 Kiesfang
2 SitaSani® 63/90/105 Dämmkörper
- Neue Abdichtung
- Neue Wärmedämmung
- Vorhandene Abdichtung
- Vorhandene Wärmedämmung
- Dampfsperre
- Unterkonstruktion
Sie können die Cookie-Einstellungen hier anpassen.
Gewünschte Anschlussmanschette nicht gefunden? Wir helfen gerne weiter +49 2522 - 83 40-140!













