SitaRetention
Fix
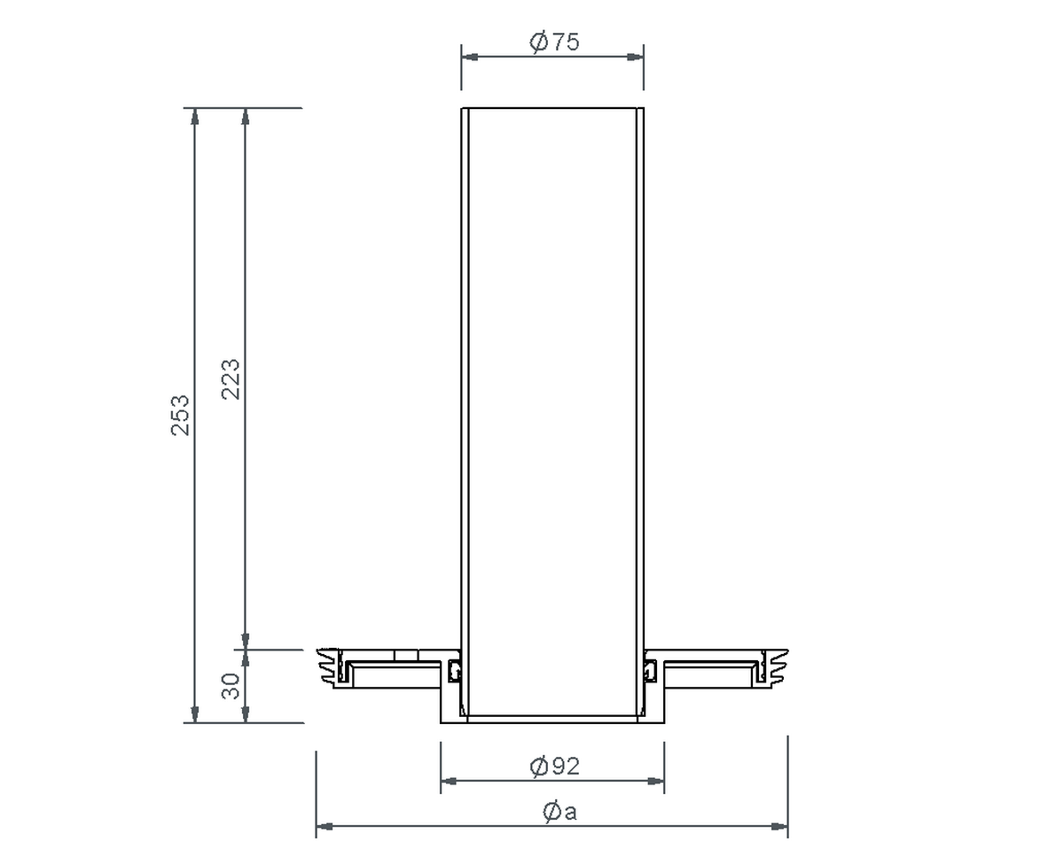
| Для модели/серии | a (мм) |
|---|---|
| SitaTrendy | 151 |
| SitaStandard, SitaIndra, SitaMulti | 194 |
Описание услуги
Примеры монтажа
MultiCAD und BIM-Daten
Выбор товара
Водоудерживающий элемент SitaRetention Fix, из полиамида (корпус) и ПНД (вентиляционная труба), с предварительно выполненным отверстием для контролируемого отвода дождевой воды с затопляемой кровли, для установки в кровельные воронки серий SitaStandard, SitaIndra и SitaMulti или SitaTrendy. Вентиляционную трубу можно укоротить на месте монтажа, полная высота 223 мм, с уплотнительными кольцами из ЭПДМ, поставка и квалифицированный монтаж.
Шахта озеленения SitaRetention и SitaRetention Fix с SitaStandard в невентилируемой кровле с экстенсивным озеленением
1 Изоляционная плита SitaStandard
2 SitaStandard, вертикальная
Надставной элемент SitaStandard, состоит из следующих элементов:
3.1 Уплотнительное кольцо
3.2 Корпус
SitaRetention Fix состоит из:
4.1 Корпус вентилятора
4.2 Вентиляционная труба
4.3 Крепежное кольцо
Шахта озеленения SitaRetention, состоит из:
5.1 закрытая крышка
5.2 Корпус
5.3 регулируемые по высоте резиновые опоры
6 Изоляционная плита надставного элемента SitaStandard
2 SitaStandard, вертикальная
Надставной элемент SitaStandard, состоит из следующих элементов:
3.1 Уплотнительное кольцо
3.2 Корпус
SitaRetention Fix состоит из:
4.1 Корпус вентилятора
4.2 Вентиляционная труба
4.3 Крепежное кольцо
Шахта озеленения SitaRetention, состоит из:
5.1 закрытая крышка
5.2 Корпус
5.3 регулируемые по высоте резиновые опоры
6 Изоляционная плита надставного элемента SitaStandard
Невентилируемая кровля с экстенсивным озеленением согласно общ. технич. регламентам в составе:
- слой озеленения в соответствии с поставщиком
- дренажный мат
- защитный мат
- гидроизоляция
- теплоизоляция
- пароизоляция
- несущая конструкция
SitaIndra без листвоуловителя с SitaRetention Fix в невентилируемой кровле, с водоудерживающей зеленой кровлей
1 Труба SitaPipe из высококачественной нержавеющей стали
2 Крепежный хомут SitaPipe из высококачественной нержавеющей стали
3 Фиксаторный хомут SitaPipe из высококачественной нержавеющей стали
4 Отвод SitaPipe, из высококачественной нержавеющей стали, 87,5°
5 Фасадная пластина SitaAttika
SitaIndra без листвоуловителя состоит из:
6.1 Пароизоляционная плита SitaMore flex
6.2 Труба SitaPipe из высококачественной нержавеющей стали
6.3 Изоляционная плита SitaIndra
6.4 Фиксаторный хомут SitaPipe из высококачественной нержавеющей стали
6.5 Корпус SitaIndra
SitaRetention Fix состоит из:
7.1 Корпус вентилятора с крепежным кольцом
7.2 Вентиляционная труба
Шахта озеленения SitaRetention, состоит из:
8.1 Корпус
8.2 закрытая крышка
8.3 регулируемые по высоте резиновые опоры
2 Крепежный хомут SitaPipe из высококачественной нержавеющей стали
3 Фиксаторный хомут SitaPipe из высококачественной нержавеющей стали
4 Отвод SitaPipe, из высококачественной нержавеющей стали, 87,5°
5 Фасадная пластина SitaAttika
SitaIndra без листвоуловителя состоит из:
6.1 Пароизоляционная плита SitaMore flex
6.2 Труба SitaPipe из высококачественной нержавеющей стали
6.3 Изоляционная плита SitaIndra
6.4 Фиксаторный хомут SitaPipe из высококачественной нержавеющей стали
6.5 Корпус SitaIndra
SitaRetention Fix состоит из:
7.1 Корпус вентилятора с крепежным кольцом
7.2 Вентиляционная труба
Шахта озеленения SitaRetention, состоит из:
8.1 Корпус
8.2 закрытая крышка
8.3 регулируемые по высоте резиновые опоры
Водоудерживающий слой в невентилируемой кровле согл. общ. технич. регламентам в составе:
- водоудерживающий слой и слой озеленения в соответствии с поставщиком
- гидроизоляция
- теплоизоляция
- пароизоляция
- несущая конструкция
In order for the external content to be
displayed at this location, you must accept
the cookies of the category
"Preferences".
You can adjust the cookie settings here.
You can adjust the cookie settings here.
| SitaRetention | Арт. № | ||
|---|---|---|---|
Fix | |||
| SitaStandard, SitaIndra, SitaMulti | 409103 | Посмотреть продукт | |
| SitaTrendy | 409104 | Посмотреть продукт |












