SitaPipe
Adapter
- Produkte
SitaPipe Edelstahl
Adapter
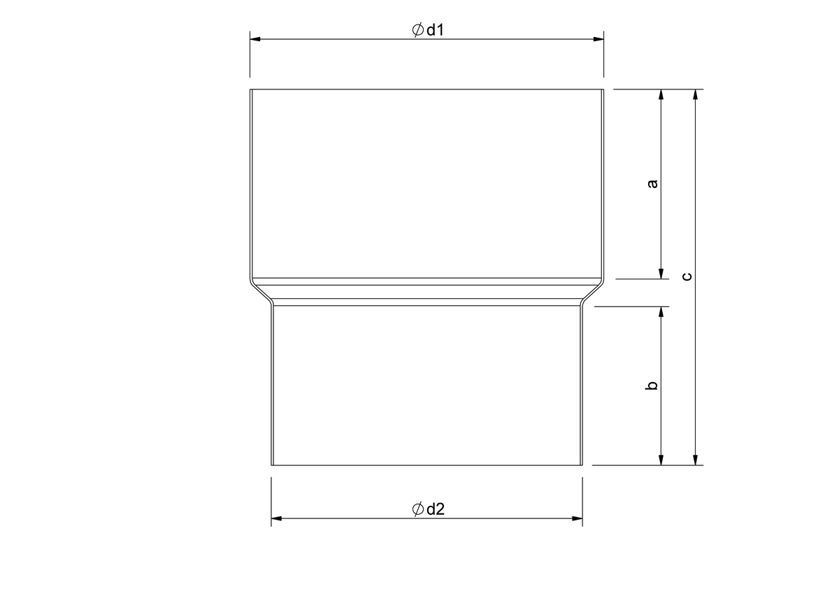
| Nennweite DN | Außendurchmesser OD (mm) | a (mm) | b (mm) | c (mm) | d1 (mm) | d2 (mm) |
|---|---|---|---|---|---|---|
| 125 | 125 | 65 | 50 | 124 | 125 | 118 |
| 70 | 75 | 50 | 50 | 109 | 77 | 76 |
| 100 | 110 | 60 | 50 | 119 | 110 | 98 |
Leistungstext
Einbaubeispiele
MultiCAD und BIM-DatenAUSSCHREIBEN.DE
Downloads
DWG EB_SitaVasant_im_nicht_beluefteten_Dachaufbau.DWG
DWG EB_SitaDSS_Indra_HE_im_nicht_beluefteten_Dachaufbau.DWG
DWG EB_SitaDSS_Indra_NE_Fallrohr_im_nicht_beluefteten_Dachaufbau.DWG
DWG EB_SitaEasy_Go_HE_im_nicht_beluefteten_Dachaufbau.DWG
DWG EB_SitaRondo_NE_mit_Fallleitung_nicht_beluefteter_Dachaufbau.DWG
DWG EB_SitaKaskade_Durchfuehrung_Fluid_senkrecht_mit_SitaCompact.DWG
DWG EB_SitaKaskade_Inside_im_nicht_beluefteten_Dachaufbau_im_WDVS.DWG
DWG EB_SitaCompact_Fluid_Linienentwaesserung_bei_Plattenbelag.DWG
PDF SitaVasant_mit_Kiesfang_im_nicht_beluefteten_Dachaufbau.pdf
PDF SitaDSS_Indra_Hauptentwaesserungsset_im_nicht_beluefteten_Dachaufbau.pdf
PDF SitaDSS_Indra_Notentwaesserungsset_mit_Fallleitung_im_nicht_beluefteten_Dachaufbau.pdf
PDF SitaEasy_Go_fuer_die_Hauptentwaesserung_im_nicht_beluefteten_Dachaufbau.pdf
PDF SitaRondo_erhoeht_eingebaut_mit_Fallleitung_im_nicht_beluefteten_Dachaufbau.pdf
PDF SitaKaskade_Durchfuehrung_Fluid_senkrecht_mit_SitaCompact.pdf
PDF SitaKaskade_Inside_im_nicht_beluefteten_Dachaufbau_und_Platten_auf_Stelzlager_mit_Fallrohr_im_WDVS.pdf
PDF SitaCompact_Fluid_Linienentwaesserung_bei_Balkonen_mit_Fluessigkunststoffabdichtung_und_Plattenbelag.pdf
Artikelauswahl
SitaPipe Adapter auf Zinkfallrohr, aus Titanzink, für den Übergang von SitaPipe Edelstahl Rohr auf Zinkfallrohr, liefern und fachgerecht einbauen.
SitaPipe Edelstahl Rohr am Fußpunkt im Wärmedämmverbundsystem
1 SitaPipe Edelstahl Reinigungsrohr
2 SitaPipe Edelstahl Übergangsstück exzentrisch
3 SitaPipe Edelstahl Rohr
4 SitaPipe Edelstahl Rohrschelle
5 SitaPipe Edelstahl Sicherungsschelle
2 SitaPipe Edelstahl Übergangsstück exzentrisch
3 SitaPipe Edelstahl Rohr
4 SitaPipe Edelstahl Rohrschelle
5 SitaPipe Edelstahl Sicherungsschelle
Wandaufbau von innen nach außen nach den aaRdT mit:
- Oberputz und Anstrich
- Wärmedämmung
- Wandkonstruktion
SitaVasant mit Kiesfang im nicht belüfteten Dachaufbau
1 SitaPipe Edelstahl Rohr
2 SitaPipe Edelstahl Rohrschelle
3 SitaPipe Edelstahl Sicherungsschelle
4 SitaPipe Edelstahl Bogen
5 SitaAttika Fassaden-Abdeckplatte
6 SitaMore Dichtmanschette
SitaVasant bestehend aus:
7.1 Rohr
7.2 Dampfsperrplatte
7.3 Sicherungsschelle
7.4 Gully
8 SitaVasant Kiesfang
2 SitaPipe Edelstahl Rohrschelle
3 SitaPipe Edelstahl Sicherungsschelle
4 SitaPipe Edelstahl Bogen
5 SitaAttika Fassaden-Abdeckplatte
6 SitaMore Dichtmanschette
SitaVasant bestehend aus:
7.1 Rohr
7.2 Dampfsperrplatte
7.3 Sicherungsschelle
7.4 Gully
8 SitaVasant Kiesfang
Nicht belüfteter Dachaufbau nach den aaRdT mit:
- Abdichtung
- Wärmedämmung
- Dampfsperre
- Unterkonstruktion
SitaDSS Indra Hauptentwässerungsset im nicht belüfteten Dachaufbau
SitaDSS Indra Hauptentwässerungsset bestehend aus:
1.1 SitaPipe Edelstahl Rohr
1.2 SitaPipe Edelstahl Rohrschelle
1.3 SitaPipe Edelstahl Sicherungsschelle
1.4 SitaPipe Edelstahl Bogen 87,5°
1.5 SitaMore Dampfsperrplatte flex
1.6 SitaIndra Dämmkörper
1.7 SitaPipe Edelstahl Rohr
1.8 SitaDSS Indra Grundkörper
1.9 SitaDSS Indra Airstop
1.10 SitaDSS Indra Kiesfang
1.11 SitaDSS Indra Airstop Befestigungsring
2 SitaPipe Edelstahl Sicherungsschelle
3 SitaPipe Edelstahl Reinigungsrohr
4 SitaPipe Edelstahl Übergangsstück exzentrisch
5 SitaPipe Edelstahl Rohrschelle
1.1 SitaPipe Edelstahl Rohr
1.2 SitaPipe Edelstahl Rohrschelle
1.3 SitaPipe Edelstahl Sicherungsschelle
1.4 SitaPipe Edelstahl Bogen 87,5°
1.5 SitaMore Dampfsperrplatte flex
1.6 SitaIndra Dämmkörper
1.7 SitaPipe Edelstahl Rohr
1.8 SitaDSS Indra Grundkörper
1.9 SitaDSS Indra Airstop
1.10 SitaDSS Indra Kiesfang
1.11 SitaDSS Indra Airstop Befestigungsring
2 SitaPipe Edelstahl Sicherungsschelle
3 SitaPipe Edelstahl Reinigungsrohr
4 SitaPipe Edelstahl Übergangsstück exzentrisch
5 SitaPipe Edelstahl Rohrschelle
Nicht belüfteter Dachaufbau nach den aaRdT mit:
- Abdichtung
- Wärmedämmung
- Dampfsperre
- Unterkonstruktion
- Attikadurchbruch mit Fugenband
SitaDSS Indra Notentwässerungsset mit Fallleitung im nicht belüfteten Dachaufbau
SitaDSS Indra Notentwässerungsset bestehend aus:
1.1 SitaPipe Edelstahl Rohr
1.2 SitaPipe Edelstahl Rohrschelle
1.3 SitaPipe Edelstahl Sicherungsschelle
1.4 SitaPipe Edelstahl Bogen 87,5°
1.5 SitaMore Dampfsperrplatte flex
1.6 SitaIndra Dämmkörper
1.7 SitaPipe Edelstahl Rohr
1.8 SitaDSS Indra Grundkörper
1.9 Anstauelement mit Airstop
1.10 Dichtring
2 SitaPipe Edelstahl Sicherungsschelle
3 SitaPipe Edelstahl Bogen 45°
1.1 SitaPipe Edelstahl Rohr
1.2 SitaPipe Edelstahl Rohrschelle
1.3 SitaPipe Edelstahl Sicherungsschelle
1.4 SitaPipe Edelstahl Bogen 87,5°
1.5 SitaMore Dampfsperrplatte flex
1.6 SitaIndra Dämmkörper
1.7 SitaPipe Edelstahl Rohr
1.8 SitaDSS Indra Grundkörper
1.9 Anstauelement mit Airstop
1.10 Dichtring
2 SitaPipe Edelstahl Sicherungsschelle
3 SitaPipe Edelstahl Bogen 45°
Nicht belüfteter Dachaufbau nach den aaRdT mit:
- Abdichtung
- Wärmedämmung
- Dampfsperre
- Unterkonstruktion
- Attikadurchbruch mit Fugenband
SitaEasy Go für die Hauptentwässerung im nicht belüfteten Dachaufbau
1 SitaPipe Edelstahl Rohr
2 SitaPipe Edelstahl Rohrschelle
3 SitaPipe Edelstahl Sicherungsschelle
4 SitaPipe Edelstahl Bogen
5 SitaAttika Fassaden-Abdeckplatte
6 SitaMore Dampfsperrplatte flex
7 SitaEasy Go
SitaEasy Kiesfang bestehend aus:
8.1 Arretierung
8.2 Kiesfangkorb
2 SitaPipe Edelstahl Rohrschelle
3 SitaPipe Edelstahl Sicherungsschelle
4 SitaPipe Edelstahl Bogen
5 SitaAttika Fassaden-Abdeckplatte
6 SitaMore Dampfsperrplatte flex
7 SitaEasy Go
SitaEasy Kiesfang bestehend aus:
8.1 Arretierung
8.2 Kiesfangkorb
9 SitaPipe Edelstahl Reinigungsrohr
Nicht belüfteter Dachaufbau nach den aaRdT mit:
- Abdichtung
- Wärmedämmung
- Dampfsperre
- Unterkonstruktion
- Attikadurchbruch mit Fugenband
SitaRondo erhöht eingebaut mit Fallleitung im nicht belüfteten Dachaufbau
1 SitaPipe Edelstahl Rohr
2 SitaPipe Edelstahl Rohrschelle
3 SitaPipe Edelstahl Sicherungsschelle
4 SitaPipe Edelstahl Bogen 87,5°
5 SitaAttika Fassaden-Abdeckplatte
6 SitaMore Dampfsperrplatte flex
SitaRondo bestehend aus:
7.1 Kiesfang mit Befestigungswinkel
7.2 Losflansch und Dichtmanschetten
7.3 Unterlegscheiben, Muttern und Schutzkappen
2 SitaPipe Edelstahl Rohrschelle
3 SitaPipe Edelstahl Sicherungsschelle
4 SitaPipe Edelstahl Bogen 87,5°
5 SitaAttika Fassaden-Abdeckplatte
6 SitaMore Dampfsperrplatte flex
SitaRondo bestehend aus:
7.1 Kiesfang mit Befestigungswinkel
7.2 Losflansch und Dichtmanschetten
7.3 Unterlegscheiben, Muttern und Schutzkappen
8 SitaPipe Edelstahl Bogen 45°
Nicht belüfteter Dachaufbau nach den aaRdT mit:
- Abdichtung
- Wärmedämmung
- Dampfsperre
- Unterkonstruktion
- Attikadurchbruch mit Fugenband
SitaKaskade Durchführung Fluid mit SitaCompact für die Hauptentwässerung im nicht belüfteten Dachaufbau
1 SitaCompact Dämmkörper
2 SitaCompact senkrecht
SitaCompact Aufstockelement bestehend aus:
3.1 Grundkörper
3.2 Dichtring
SitaDrain® Flächenrahmen bestehend aus:
4.1 Rahmen
4.2 Revisionsrost
5 SitaKaskade Durchführung Fluid
6 SitaPipe Edelstahl Sicherungsschelle
7 SitaPipe Edelstahl Rohr
8 SitaPipe Edelstahl Rohrschelle
9 SitaAttika Fassaden-Abdeckplatte
10 SitaPipe Edelstahl Bogen
11 SitaMore Dampfsperrplatte flex
2 SitaCompact senkrecht
SitaCompact Aufstockelement bestehend aus:
3.1 Grundkörper
3.2 Dichtring
SitaDrain® Flächenrahmen bestehend aus:
4.1 Rahmen
4.2 Revisionsrost
5 SitaKaskade Durchführung Fluid
6 SitaPipe Edelstahl Sicherungsschelle
7 SitaPipe Edelstahl Rohr
8 SitaPipe Edelstahl Rohrschelle
9 SitaAttika Fassaden-Abdeckplatte
10 SitaPipe Edelstahl Bogen
11 SitaMore Dampfsperrplatte flex
Nicht belüfteter Dachaufbau mit Plattenbelag auf Stelzlager nach den aaRdT mit:
- Plattenbelag auf Stelzlager
- Bautenschutzmatte
- Abdichtung
- Wärmedämmung
- Dampfsperre
- Unterkonstruktion
SitaKaskade Inside im nicht belüfteten Dachaufbau und Platten auf Stelzlager mit Übergang auf Fallrohr im Wärmedämmverbundsystem
SitaKaskade Inside für Fallrohr bestehend aus:
1.1 SitaPipe Edelstahl Bogen 87,5°
1.2 SitaPipe Edelstahl Sicherungsschelle
1.3 SitaMore Dampfsperrplatte flex
1.4 SitaKaskade Inside
1.5 SitaKaskade Inside Losflansch mit Dichtmanschetten, Muttern, U-Scheiben und Schutzkappen
1.6 SitaPipe Edelstahl Bogen 30°
1.7 SitaPipe Edelstahl Bogen 15°
2 SitaPipe Edelstahl Rohr
3 SitaPipe Edelstahl Rohrschelle
4 SitaPipe Edelstahl Sicherungsschelle
1.1 SitaPipe Edelstahl Bogen 87,5°
1.2 SitaPipe Edelstahl Sicherungsschelle
1.3 SitaMore Dampfsperrplatte flex
1.4 SitaKaskade Inside
1.5 SitaKaskade Inside Losflansch mit Dichtmanschetten, Muttern, U-Scheiben und Schutzkappen
1.6 SitaPipe Edelstahl Bogen 30°
1.7 SitaPipe Edelstahl Bogen 15°
2 SitaPipe Edelstahl Rohr
3 SitaPipe Edelstahl Rohrschelle
4 SitaPipe Edelstahl Sicherungsschelle
Nicht belüfteter Dachaufbau mit Plattenbelag auf Stelzlager nach den aaRdT mit:
- Plattenbelag auf Stelzlager
- Schutzmatte
- Abdichtung
- Wärmedämmung
- Dampfsperre
- Unterkonstruktion
SitaCompact Fluid Linienentwässerung bei Balkonen mit Flüssigkunststoffabdichtung und Plattenbelag
1 SitaPipe Edelstahl Rohr
2 SitaAttika Fassaden-Abdeckplatte
3 SitaCompact Fluid Aufsatz
4 SitaCompact Fluid
5 SitaCompact Fluid Flachrost
6 SitaPipe Edelstahl Rohrschelle
7 SitaCompact Fluid Höhenausgleichsstück
8 SitaCompact Fluid Rohraufnahme
2 SitaAttika Fassaden-Abdeckplatte
3 SitaCompact Fluid Aufsatz
4 SitaCompact Fluid
5 SitaCompact Fluid Flachrost
6 SitaPipe Edelstahl Rohrschelle
7 SitaCompact Fluid Höhenausgleichsstück
8 SitaCompact Fluid Rohraufnahme
Dachaufbau 1 mit Flüssigkunststoff nach den aaRdT mit:
Dachaufbau 2 mit Flüssigkunststoff nach den aaRdT mit:
- Abdichtung mit Flüssigkunststoff
- Unterkonstruktion
Dachaufbau 2 mit Flüssigkunststoff nach den aaRdT mit:
- Plattenbelag
- Schutzmatte
- Abdichtung mit Flüssigkunststoff
- Unterkonstruktion
Damit die externen Inhalte an dieser Stelle
angezeigt werden können, müssen Sie die
Cookies der Kategorie „Präferenzen“
akzeptieren.
Sie können die Cookie-Einstellungen hier anpassen.
Sie können die Cookie-Einstellungen hier anpassen.
Damit die externen Inhalte an
dieser Stelle angezeigt werden
können, müssen Sie die Cookies
der Kategorie „Präferenzen“
akzeptieren.
Sie können die Cookie-Einstellungen hier anpassen.
Sie können die Cookie-Einstellungen hier anpassen.
AutoCAD
DWG EB_SitaPipe_Edelstahl_Rohr_Fusspunkt_im_nicht_beluefteten_Dachaufbau_im_WDVS.DWGDWG EB_SitaVasant_im_nicht_beluefteten_Dachaufbau.DWG
DWG EB_SitaDSS_Indra_HE_im_nicht_beluefteten_Dachaufbau.DWG
DWG EB_SitaDSS_Indra_NE_Fallrohr_im_nicht_beluefteten_Dachaufbau.DWG
DWG EB_SitaEasy_Go_HE_im_nicht_beluefteten_Dachaufbau.DWG
DWG EB_SitaRondo_NE_mit_Fallleitung_nicht_beluefteter_Dachaufbau.DWG
DWG EB_SitaKaskade_Durchfuehrung_Fluid_senkrecht_mit_SitaCompact.DWG
DWG EB_SitaKaskade_Inside_im_nicht_beluefteten_Dachaufbau_im_WDVS.DWG
DWG EB_SitaCompact_Fluid_Linienentwaesserung_bei_Plattenbelag.DWG
Einbaubeispiele
PDF SitaPipe_Edelstahl_Rohr_am_Fußpunkt_im_Waermedaemmverbundsystem.pdfPDF SitaVasant_mit_Kiesfang_im_nicht_beluefteten_Dachaufbau.pdf
PDF SitaDSS_Indra_Hauptentwaesserungsset_im_nicht_beluefteten_Dachaufbau.pdf
PDF SitaDSS_Indra_Notentwaesserungsset_mit_Fallleitung_im_nicht_beluefteten_Dachaufbau.pdf
PDF SitaEasy_Go_fuer_die_Hauptentwaesserung_im_nicht_beluefteten_Dachaufbau.pdf
PDF SitaRondo_erhoeht_eingebaut_mit_Fallleitung_im_nicht_beluefteten_Dachaufbau.pdf
PDF SitaKaskade_Durchfuehrung_Fluid_senkrecht_mit_SitaCompact.pdf
PDF SitaKaskade_Inside_im_nicht_beluefteten_Dachaufbau_und_Platten_auf_Stelzlager_mit_Fallrohr_im_WDVS.pdf
PDF SitaCompact_Fluid_Linienentwaesserung_bei_Balkonen_mit_Fluessigkunststoffabdichtung_und_Plattenbelag.pdf













