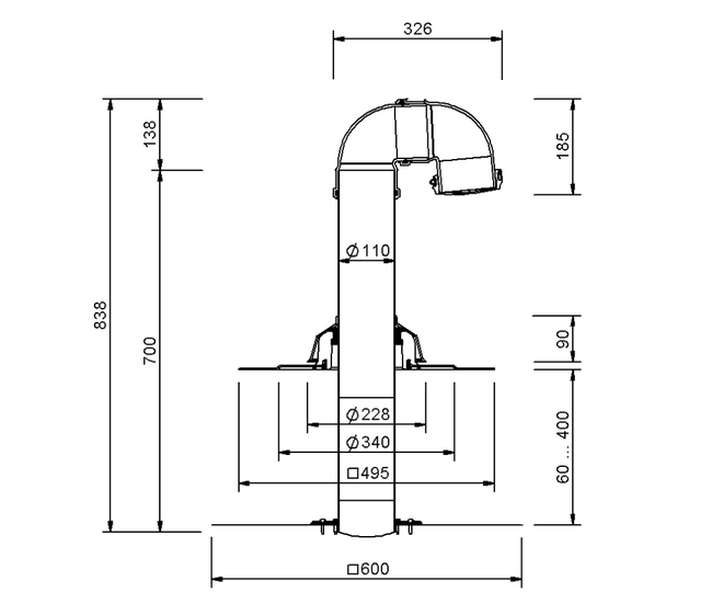
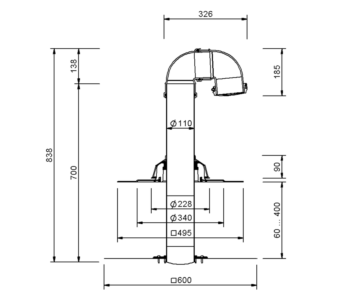
SitaFireguard® Rohrdurchführung DN 100
Brandschutzrohrdurchführung
Eigenschaften
Artikelnummer
F305103
Anschluss
Elevate QuickSeam SA Flashing-Manschette
Außendurchmesser OD (mm)
110 mm
Temperaturbeständigkeit min.
-20 °C
Überbrückung der Wärmedämmung min. (mm)
60 mm
Überbrückung der Wärmedämmung max. (mm)
400 mm
Die SitaFireguard® Rohrdurchführung ist der sichere Dachanschluss für alle Kabel- und Mediendurchführungen auf genutzten und ungenutzten Flachdächern mit Brandschutzanforderungen nach DIN 18234. Mit der Grundplatte inklusive angeschäumter Wunschanschlussmanschette können nahezu alle Abdichtungsanschlüsse realisiert werden. Durch eine mehrlippige Dichtung wird eine Rückstausicherheit bis zu einer Wassersäule von 2m hergestellt. Der integrierte Branschutzstopfen verhindert eine Brandweiterleitung auf das Dach.
+













