SitaVent Fireguard®
Brandschutzlüfter
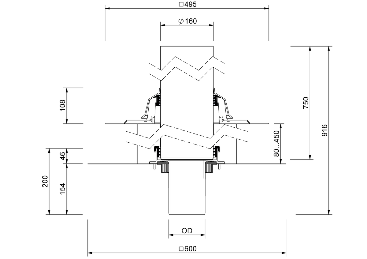
| Nennweite DN | Außendurchmesser OD (mm) | Durchbruch / Kernbohrung (mm) | Aussparungsmaß (mm x mm) | Überbrückung der Wärmedämmung min. (mm) | Überbrückung der Wärmedämmung max. (mm) |
|---|---|---|---|---|---|
| 125 | 125 | 255 | 200 mm x 200 mm | 80 | 450 |
| 150 | 160 | 300 | 300 mm x 300 mm | 80 | 450 |
| 70 | 75 | 185 | 150 mm x 150 mm | 80 | 450 |
| 100 | 110 | 235 | 190 mm x 190 mm | 80 | 450 |
SitaVent Fireguard® für den vorbeugenden Brandschutz und zur Verhinderung einer Brandweiterleitung von unten bei kleinen brennbaren Durchdringungen nach DIN 18234 Teil 3 u. 4 bei Dächern aus Polyurethandämmung, bestehend aus: PE-Grundkörper, Kragen zur Fixierung am Verstärkungsblech und zum Einklemmen der Dampfsperre, Grundplatte mit fest eingeschäumter Wunschanschlussmanschette (495 mm x 495 mm), Edelstahlrohr rostfrei, DN/OD 150/160, 750 mm lang, für Dämmstoffstärken von 80 bis 450 mm, siebenlippigem Dichtring und Regenabweiser aus Polyamid. Zum direkten Anschluss an Rohre mit Steckmuffe, mit Dichtmanschette und Verstärkungsblech nach DIN EN 1090-4, mit vormontierter Brandschutzmanschette und 2-teiligem Dämmkörper aus Mineralwolle 300 x 300 x 200 mm, liefern und fachgerecht einbauen.
SitaVent Fireguard® im nicht belüfteten Dachaufbau
1.1 Verstärkungsblech
1.2 Dichtmanschette
1.3 Bohrschraube
1.4 Dichtung
1.5 Brandschutzmanschette
1.6 PE-Grundkörper
1.7 Anschlussrohr
1.8 Dichtring
1.9 Regenabweiser
1.10 Grundplatte
SitaVent Regenhaube bestehend aus:
2.1 Befestigungsring
2.2 Grundkörper
- Abdichtung
- Wärmedämmung nicht brennbar, min. 1,0 m x 1,0 m
- Dampfsperre
- Nicht brennbare Profilfüller
- Stahltrapezprofil
Sie können die Cookie-Einstellungen hier anpassen.
Sie können die Cookie-Einstellungen hier anpassen.
Technische Zeichnungen
PDF TechnischeZeichnung_F304700_de.pdfPDF TechnischeZeichnung_F304710_de.pdf
PDF TechnischeZeichnung_F304800_de.pdf
PDF TechnischeZeichnung_F304810_de.pdf
PDF TechnischeZeichnung_F304900_de.pdf
PDF TechnischeZeichnung_F304910_de.pdf
PDF TechnischeZeichnung_F305000_de.pdf
PDF TechnischeZeichnung_F305010_de.pdf
DWG TZ_DB_SitaVent_Fireguard_Edelstahlrohr_DN100.dwg
DWG TZ_DB_SitaVent_Fireguard_Edelstahlrohr_DN125.dwg
DWG TZ_DB_SitaVent_Fireguard_Edelstahlrohr_DN150.dwg
DWG TZ_DB_SitaVent_Fireguard_Edelstahlrohr_DN70.dwg
Gewünschte Anschlussmanschette nicht gefunden? Wir helfen gerne weiter +49 2522 - 83 40-140!













