SitaCompact
Dämmkörper Gully
Leistungstext
Einbaubeispiele
MultiCAD und BIM-DatenAUSSCHREIBEN.DE
Downloads
Artikelauswahl
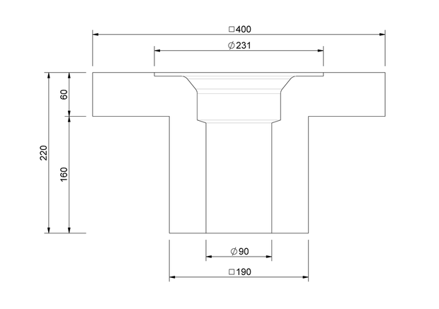
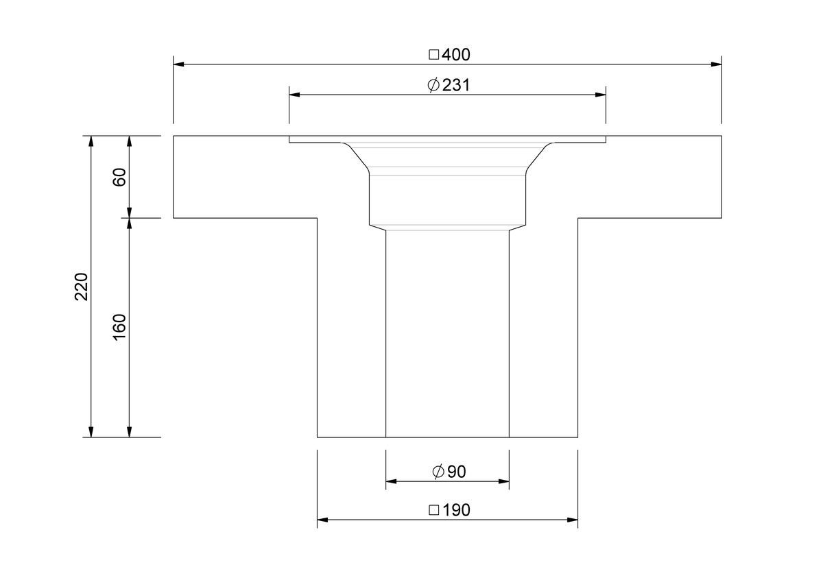
SitaCompact Dämmkörper Gully für SitaCompact und SitaCompact Schraubflansch aus extrudiertem Polystyrolschaum, WLG 040, 400 x 400 x 220 mm, Brandverhalten Euroklasse E, gemäß EN 13501-1. Zur Wärmedämmung und als verlorene Schalung geeignet, liefern und fachgerecht einbauen.
SitaCompact im nicht belüfteten Dachaufbau mit SitaCompact Balkonaufsatz und Plattenbelag
1 SitaCompact Dämmkörper
2 SitaCompact senkrecht
SitaCompact Aufstockelement bestehend aus:
3.1 Dichtring
3.2 Grundkörper
SitaCompact Balkonaufsatz bestehend aus:
4.1 Endrost
4.2 Gehäuse
4.3 Gittereinlasssieb
2 SitaCompact senkrecht
SitaCompact Aufstockelement bestehend aus:
3.1 Dichtring
3.2 Grundkörper
SitaCompact Balkonaufsatz bestehend aus:
4.1 Endrost
4.2 Gehäuse
4.3 Gittereinlasssieb
Nicht belüfteter Dachaufbau mit Plattenbelag auf Stelzlager nach den aaRdT mit:
- Plattenbelag auf Stelzlager
- Bautenschutzmatte
- Abdichtung
- Wärmedämmung
- Dampfsperre
- Unterkonstruktion
SitaCompact mit Anstauring im nicht belüfteten Dachaufbau mit Plattenbelag
1 SitaCompact Dämmkörper
2 SitaCompact senkrecht
SitaCompact Aufstockelement bestehend aus:
3.1 Dichtring
3.2 Grundkörper
SitaCompact Anstauring bestehend aus:
4.1 Anstauring
4.2 Dichtring
SitaDrain® Terra bestehend aus:
5.1 Revisionsrost
5.2 höheneinstellbaren Gummifüßen
5.3 Rahmen
6 SitaPipe Edelstahl Rohrschelle
7 SitaPipe Edelstahl Rohr
8 SitaPipe Edelstahl Bogen
9 SitaPipe Edelstahl Sicherungsschelle
2 SitaCompact senkrecht
SitaCompact Aufstockelement bestehend aus:
3.1 Dichtring
3.2 Grundkörper
SitaCompact Anstauring bestehend aus:
4.1 Anstauring
4.2 Dichtring
SitaDrain® Terra bestehend aus:
5.1 Revisionsrost
5.2 höheneinstellbaren Gummifüßen
5.3 Rahmen
6 SitaPipe Edelstahl Rohrschelle
7 SitaPipe Edelstahl Rohr
8 SitaPipe Edelstahl Bogen
9 SitaPipe Edelstahl Sicherungsschelle
Nicht belüfteter Dachaufbau mit Plattenbelag auf Stelzlager nach den aaRdT mit:
- Plattenbelag auf Stelzlager
- Bautenschutzmatte
- Abdichtung
- Wärmedämmung
- Dampfsperre
- Unterkonstruktion
Damit die externen Inhalte an dieser Stelle
angezeigt werden können, müssen Sie die
Cookies der Kategorie „Präferenzen“
akzeptieren.
Sie können die Cookie-Einstellungen hier anpassen.
Sie können die Cookie-Einstellungen hier anpassen.
Damit die externen Inhalte an
dieser Stelle angezeigt werden
können, müssen Sie die Cookies
der Kategorie „Präferenzen“
akzeptieren.
Sie können die Cookie-Einstellungen hier anpassen.
Sie können die Cookie-Einstellungen hier anpassen.
| SitaCompact | Artikel Nr. | ||
|---|---|---|---|
Dämmkörper Gully | |||
| SitaCompact senkrecht | E199003 | Zum Produkt |













