SitaStandard
Freispiegelgully
- Produkte
SitaStandard
Freispiegelgully
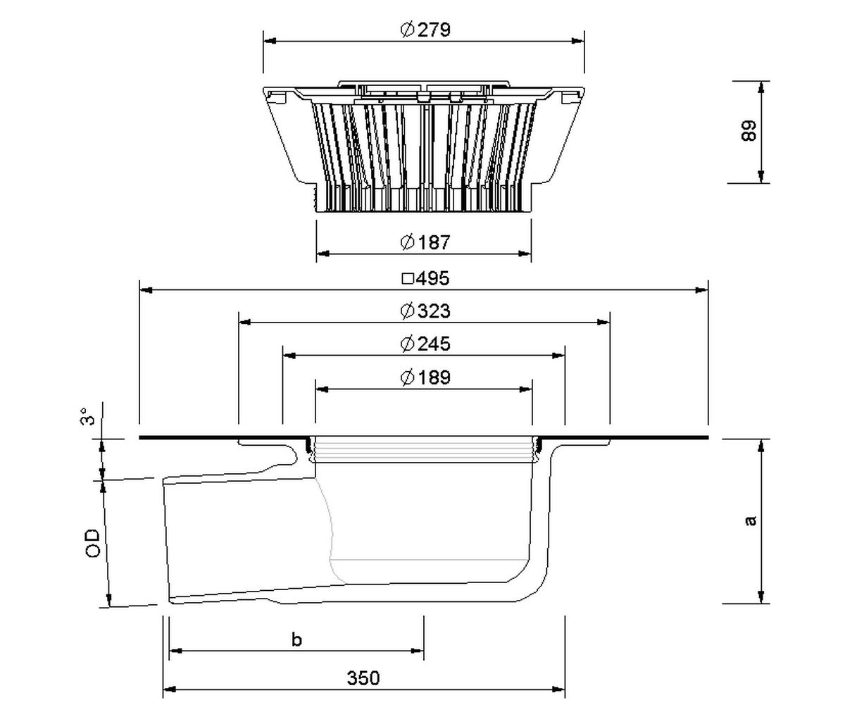
| Nennweite DN | Außendurchmesser OD (mm) | Aussparungsmaß (mm x mm) | a (mm) | b (mm) |
|---|---|---|---|---|
| 70 | 75 | 250 x 350 mm | 122 | 224 |
| 100 | 110 | 250 x 350 mm | 145 | 222 |
| 125 | 125 | 250 x 430 mm | 149 | 298 |
Leistungstext
Abflussmenge
Abflussmenge nach DIN EN 1253-2 in l/s
Abflussmenge nach DIN EN 1253-2 mit Anstauelement für die Notentwässerung in l/s
Hier finden Sie eine Übersicht über alle verfügbaren Abflussmengen.
Einbaubeispiele
MultiCAD und BIM-DatenAUSSCHREIBEN.DE
Downloads
PDF TechnischeZeichnung_101410_de.pdf
PDF TechnischeZeichnung_101600_de.pdf
PDF TechnischeZeichnung_101610_de.pdf
PDF TechnischeZeichnung_101800_de.pdf
PDF TechnischeZeichnung_101810_de.pdf
DWG TZ_DB_SitaStandard_abgewinkelt_DN100.dwg
DWG TZ_DB_SitaStandard_abgewinkelt_DN125.DWG
DWG TZ_DB_SitaStandard_abgewinkelt_DN70.dwg
Artikelauswahl
SitaStandard abgewinkelt, aus Polyurethan, wärmegedämmt, nach DIN EN 1253-2, in den Nennweiten DN 70, DN 100 und DN 125. Zum direkten Anschluss an Rohre mit Steckmuffe, zur Freispiegelentwässerung, mit großer eingeschäumter Wunschanschlussmanschette (495 mm x 495 mm) passend zur Dachabdichtung und mit Fixierring zur zusätzlichen Sicherung der Anschlussmanschette und zur Aufnahme des beiliegenden Kiesfangs, liefern und fachgerecht einbauen.
|
Stauhöhe (mm) | ||||||||||||||||||||
|---|---|---|---|---|---|---|---|---|---|---|---|---|---|---|---|---|---|---|---|---|
| Nennweite DN | 5 | 10 | 15 | 20 | 25 | 30 | 35 | 40 | 45 | 50 | 55 | 60 | 65 | 70 | 75 | 80 | 85 | 90 | 95 | 100 |
| 70 | 0.7 | 1.8 | 2.8 | 3.8 | 4.7 | 5.8 | 6.9 | 7.9 | 8.9 | 10.2 | 11.5 | 11.5 | 11.5 | 11.5 | 11.5 | 11.5 | 11.5 | 11.5 | 11.5 | 11.5 |
| 100 | 0.5 | 1.5 | 2.4 | 3.4 | 4.3 | 5.3 | 6.3 | 7.5 | 8.6 | 9.8 | 11 | 11 | 11 | 11 | 11 | 11 | 11 | 11 | 11 | 11 |
| 125 | 0.8 | 1.9 | 2.9 | 4.1 | 5.3 | 6.3 | 7.3 | 8.4 | 9.4 | 10.8 | 12.1 | 13.2 | 14.3 | 14.3 | 14.3 | 14.3 | 14.3 | 14.3 | 14.3 | 14.3 |
|
Stauhöhe (mm) | ||||||||||||||||||||
|---|---|---|---|---|---|---|---|---|---|---|---|---|---|---|---|---|---|---|---|---|
| Nennweite DN | 5 | 10 | 15 | 20 | 25 | 30 | 35 | 40 | 45 | 50 | 55 | 60 | 65 | 70 | 75 | 80 | 85 | 90 | 95 | 100 |
| 70 | 1.2 | 2.3 | 3.3 | 4.8 | 6.2 | 7.8 | 9.4 | 11.3 | 13.1 | 14.2 | 15.3 | 15.4 | 15.5 | 15.5 | 15.5 | 15.5 | 15.5 | 15.5 | 15.5 | 15.5 |
| 100 | 1.2 | 2.3 | 3.4 | 4.9 | 6.3 | 8.1 | 9.8 | 11.8 | 13.8 | 16.5 | 19.1 | 22.9 | 26.7 | 26.7 | 26.7 | 26.7 | 26.7 | 26.7 | 26.7 | 26.7 |
| 125 | 1.2 | 2.3 | 3.3 | 4.8 | 6.2 | 7.6 | 8.9 | 10.3 | 11.6 | 12.1 | 12.6 | 12.8 | 12.9 | 12.9 | 12.9 | 12.9 | 12.9 | 12.9 | 12.9 | 12.9 |
SitaStandard abgewinkelt im belüfteten Dachaufbau
1 SitaPipe Edelstahl Rohrschelle
2 SitaPipe Edelstahl Rohr
3 SitaPipe Edelstahl Bogen
SitaStandard abgewinkelt bestehend aus:
4.1 Grundkörper mit Wunschanschlussmanschette
4.2 Kiesfang Grundkörper
4.3 Kiesfang Deckel
2 SitaPipe Edelstahl Rohr
3 SitaPipe Edelstahl Bogen
SitaStandard abgewinkelt bestehend aus:
4.1 Grundkörper mit Wunschanschlussmanschette
4.2 Kiesfang Grundkörper
4.3 Kiesfang Deckel
Belüfteter Dachaufbau nach den aaRdT mit:
- Abdichtung
- Schalung
- Tragkonstruktion
SitaStandard abgewinkelt als Notentwässerung im nicht belüfteten Dachaufbau
1 SitaPipe Edelstahl Rohr
2 SitaAttika Fassaden-Abdeckplatte
3 SitaMore Dichtmanschette für WDVS
4 SitaMore Dampfsperrplatte flex
5 SitaStandard abgewinkelt Dämmkörper
6 SitaPipe Edelstahl Sicherungsschelle
7 SitaStandard abgewinkelt
SitaMore Anstauelement bestehend aus:
8.1 Deckel
8.2 Grundkörper
8.3 Dichtring
8.4 höhenverstellbare Gummimetallpuffer
2 SitaAttika Fassaden-Abdeckplatte
3 SitaMore Dichtmanschette für WDVS
4 SitaMore Dampfsperrplatte flex
5 SitaStandard abgewinkelt Dämmkörper
6 SitaPipe Edelstahl Sicherungsschelle
7 SitaStandard abgewinkelt
SitaMore Anstauelement bestehend aus:
8.1 Deckel
8.2 Grundkörper
8.3 Dichtring
8.4 höhenverstellbare Gummimetallpuffer
Nicht belüfteter Dachaufbau nach den aaRdT mit:
- Abdichtung
- Wärmedämmung
- Dampfsperre
- Unterkonstruktion
Damit die externen Inhalte an dieser Stelle
angezeigt werden können, müssen Sie die
Cookies der Kategorie „Präferenzen“
akzeptieren.
Sie können die Cookie-Einstellungen hier anpassen.
Sie können die Cookie-Einstellungen hier anpassen.
Damit die externen Inhalte an
dieser Stelle angezeigt werden
können, müssen Sie die Cookies
der Kategorie „Präferenzen“
akzeptieren.
Sie können die Cookie-Einstellungen hier anpassen.
Sie können die Cookie-Einstellungen hier anpassen.
Technische Zeichnungen
PDF TechnischeZeichnung_101400_de.pdfPDF TechnischeZeichnung_101410_de.pdf
PDF TechnischeZeichnung_101600_de.pdf
PDF TechnischeZeichnung_101610_de.pdf
PDF TechnischeZeichnung_101800_de.pdf
PDF TechnischeZeichnung_101810_de.pdf
DWG TZ_DB_SitaStandard_abgewinkelt_DN100.dwg
DWG TZ_DB_SitaStandard_abgewinkelt_DN125.DWG
DWG TZ_DB_SitaStandard_abgewinkelt_DN70.dwg
Gewünschte Anschlussmanschette nicht gefunden? Wir helfen gerne weiter +49 2522 - 83 40-140!
+













