SitaSteel Rechteckspeier
Attikagully
- Produkte
SitaSteel Rechteckspeier
Attikagully
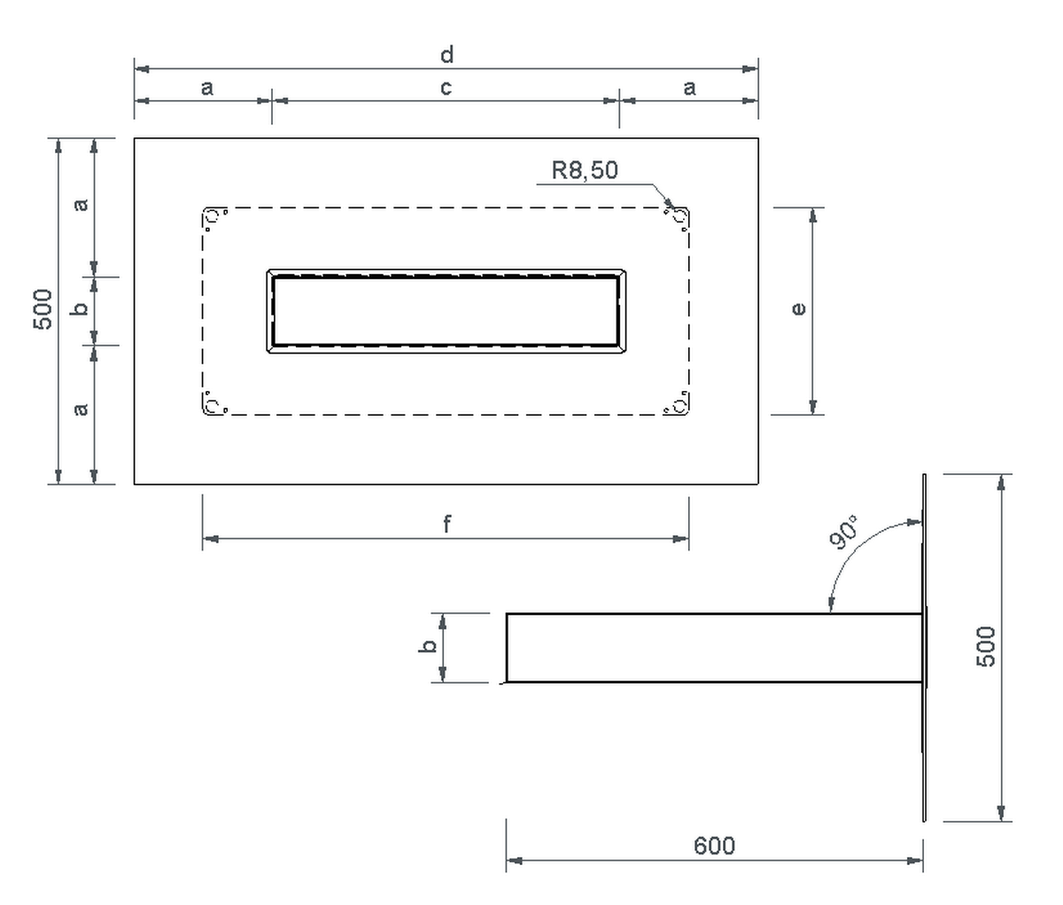
| Stutzenquerschnitt (mm x mm) | a (mm) | b (mm) | c (mm) | d (mm) | e (mm) |
|---|---|---|---|---|---|
| 500 x 100 | 100 | 500 | 300 | 700 | 900 |
| 150 x 50 | 50 | 150 | 250 | 350 | 600 |
| 300 x 100 | 100 | 300 | 300 | 500 | 700 |
Leistungstext
Abflussmenge
Abflussmenge nach DIN EN 1253-2 in l/s
Hier finden Sie eine Übersicht über alle verfügbaren Abflussmengen.
Einbaubeispiele
AUSSCHREIBEN.DE
Downloads
Artikelauswahl
SitaSteel Rechteckspeier, aus Edelstahl rostfrei, Werkstoffnummer 1.4401 Stutzen und 1.4301 Flansch, in den Größen 150 mm x 50 mm, 300 mm x 100 mm und 500 mm x 100 mm, mit einer Stutzenlänge von 600 mm und 0 Grad Stutzenneigung, mit Bitumenmanschette in den Größen 600 mm / 700 mm / 900 mm x 500 mm, mit vorgestanzten Aussparungen im Flansch zur Befestigung an der Attika, liefern und fachgerecht einbauen.
|
Stauhöhe (mm) | ||||||||||||||||||||
|---|---|---|---|---|---|---|---|---|---|---|---|---|---|---|---|---|---|---|---|---|
| Stutzenquerschnitt (mm x mm) | 5 | 10 | 15 | 20 | 25 | 30 | 35 | 40 | 45 | 50 | 55 | 60 | 65 | 70 | 75 | 80 | 85 | 90 | 95 | 100 |
| 150 x 50 | 0.1 | 0.2 | 0.3 | 0.5 | 0.7 | 1.1 | 1.4 | 1.9 | 2.3 | 2.7 | 2.9 | 3.2 | 3.5 | 3.7 | 4 | 4.2 | 4.4 | 4.6 | 4.8 | 5 |
| 300 x 100 | 0.3 | 0.6 | 0.9 | 1.5 | 2 | 2.6 | 3.2 | 3.9 | 4.6 | 5.8 | 6.3 | 6.9 | 7.7 | 8.5 | 9.3 | 10.1 | 11.2 | 12.2 | 13.2 | 14.2 |
| 500 x 100 | 0.5 | 0.9 | 1.4 | 2.4 | 3.4 | 4.5 | 5.5 | 6.7 | 7.8 | 9.6 | 10.5 | 11.5 | 12.8 | 14 | 15.5 | 17 | 18.5 | 20 | 21.6 | 23.2 |
MultiCAD und BIM-Daten
Damit die externen Inhalte an dieser Stelle
angezeigt werden können, müssen Sie die
Cookies der Kategorie „Präferenzen“
akzeptieren.
Sie können die Cookie-Einstellungen hier anpassen.
Sie können die Cookie-Einstellungen hier anpassen.
Damit die externen Inhalte an
dieser Stelle angezeigt werden
können, müssen Sie die Cookies
der Kategorie „Präferenzen“
akzeptieren.
Sie können die Cookie-Einstellungen hier anpassen.
Sie können die Cookie-Einstellungen hier anpassen.
| SitaSteel Rechteckspeier | Artikel Nr. | |||
|---|---|---|---|---|
| 150 x 50 | Bitumen-Manschette | 30101000 | Zum Produkt | |
| 300 x 100 | Bitumen-Manschette | 30101100 | Zum Produkt | |
| 500 x 100 | Bitumen-Manschette | 30101200 | Zum Produkt |
Gewünschte Anschlussmanschette nicht gefunden? Wir helfen gerne weiter +49 2522 - 83 40-140!
+












