SitaVent Revision
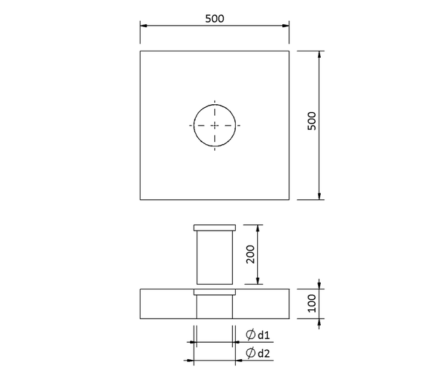
Dämmkörper
| Nennweite DN | d1 (mm) | d2 (mm) |
|---|---|---|
| 150 | 120 | 140 |
| 100 | 70 | 90 |
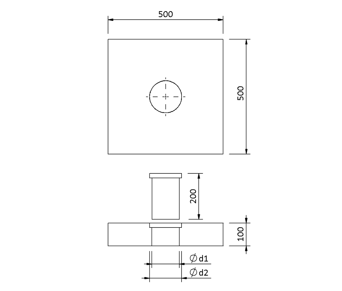
| Nennweite DN | d1 (mm) | d2 (mm) |
|---|---|---|
| 150 | 120 | 140 |
| 100 | 70 | 90 |
SitaVent Revision Dämmkörper, aus Polyurethan mit Aluminium Deckschichten, Größe 500 mm x 500 mm x 100 mm, Wärmeleitfähigkeit lambda = 0,023 W/mK, Druckfestigkeit 120 kPa, mit passgenauem 200 mm langen Dämmkern, als Einbauhilfe und Wärmedämmung zur Verhinderung von Wärmebrücken, liefern und fachgerecht einbauen.
| SitaVent Revision | Artikel Nr. | |||
|---|---|---|---|---|
Dämmkörper | ||||
| 100 mm | SitaVent Revision DN 100 | 178200 | Zum Produkt | |
| 100 mm | SitaVent Revision DN 150 | 178300 | Zum Produkt |