SitaTurbo
Umkehrdach
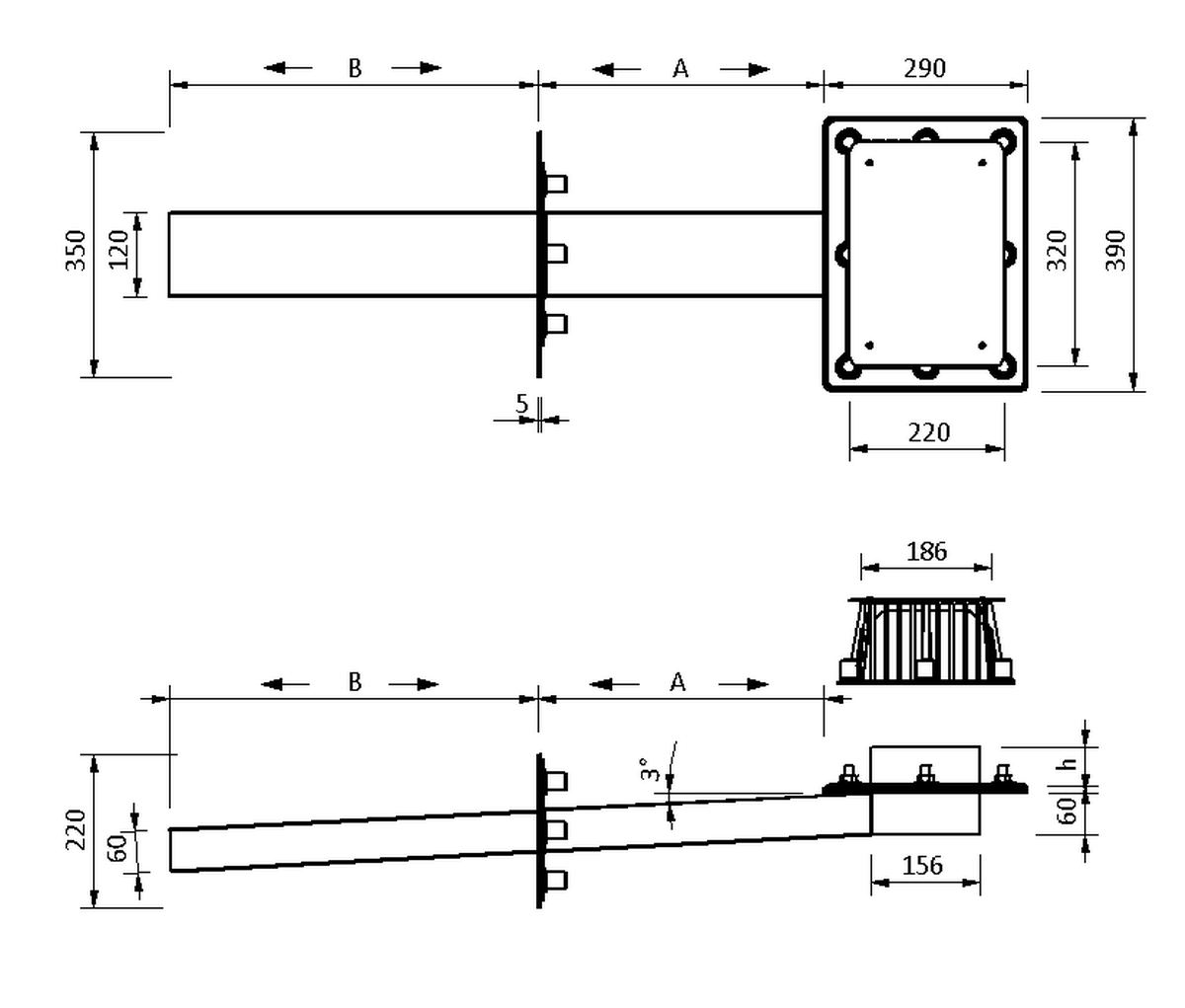
| Durchbruch / Kernbohrung (mm) | Stutzenquerschnitt (mm x mm) | A | B | H |
|---|---|---|---|---|
| 170 | 120 x 60 | 450 mm | 700 mm | Höhe Anstaulosflansch nach Vorgabe |
| 170 | 120 x 60 | Abstand zur Attika | Attikabreite plus Überstand | Höhe Anstaulosflansch nach Vorgabe |
+
| Durchbruch / Kernbohrung (mm) | Stutzenquerschnitt (mm x mm) | A | B | H |
|---|---|---|---|---|
| 170 | 120 x 60 | 450 mm | 700 mm | Höhe Anstaulosflansch nach Vorgabe |
| 170 | 120 x 60 | Abstand zur Attika | Attikabreite plus Überstand | Höhe Anstaulosflansch nach Vorgabe |
SitaTurbo Umkehrdach, Attikagully mit Rechteckrohr nach DIN EN 1253-2. Abflussmenge als Speier 5,0 l/s bei 65 mm Stauhöhe und 8,7 l/s bei 35 mm Stauhöhe mit einem 4,0 m langem angeschlossenem Fallrohr DN/OD 100/110 mm. Aus Edelstahl (Werkstoff-Nr. 1.4301), mit Schraubflansch als Anstauelement zum Einklemmen des Schutzvlieses und mit einer am Rechteckrohr angeschweißten Flanschplatte zum Einklemmen von Bitumen-, Kunststoff- und Kautschukbahnen mit Dichtmanschetten, Gewindebolzen, Unterlegscheiben, Muttern M12, Schutzkappen und Kiesfang, liefern und fachgerecht einbauen.
|
Stauhöhe (mm) | ||||||||||||||||||||
|---|---|---|---|---|---|---|---|---|---|---|---|---|---|---|---|---|---|---|---|---|
| Stutzenquerschnitt (mm x mm) | 5 | 10 | 15 | 20 | 25 | 30 | 35 | 40 | 45 | 50 | 55 | 60 | 65 | 70 | 75 | 80 | 85 | 90 | 95 | 100 |
| 120 x 60 | 0.6 | 1.5 | 2.3 | 3 | 3.6 | 3.9 | 4.1 | 4.3 | 4.4 | 4.5 | 4.6 | 4.8 | 5 | 5 | 5 | 5 | 5 | 5 | 5 | 5 |
| SitaTurbo | Artikel Nr. | ||
|---|---|---|---|
| Sonderanfertigung | 185999 | Zum Produkt | |
| A=450 mm / B=700 mm | 18275999 | Zum Produkt |